Breitwieser Roth Breitwieser Roth

Objekt: 9858

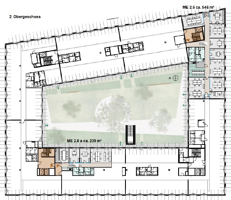
ZAM ins neue Viertel

Nettokaltmiete / m2 23,90 €
Nebenkosten / m2 4 €
Fläche 548 m²
Teilbar ab 235 m²
81249 München Aubing / Lochhausen / Langwied
Bezug nach Vereinbarung
Provision provisionsfrei für den Mieter

Beschreibung

Mit stilvollem und schlichtem Design präsentiert sich das Bürogebäude „ZAM“ im neuen Stadtteil Freiham. Hier entsteht ein neuer und pulsierender Stadtteil und ist der drittjüngste Stadtbezirk Münchens. Das Gebäude hat 4 Erschließungskerne, die die Möglichkeit bieten, die Etagen auf bis zu 8 Mieteinheiten aufzuteilen. Die großen Innenhofflächen sind intensiv begrünt und laden zur Nutzung als Ruhe- und Entspannungszone ein.

Lage

  • zwischen Mahatma-Gandhi-Platz und der Bodenseestraße
  • S8 Freiham in 4 Minuten erreichbar
  • zahlreiche Einkaufsmöglichkeiten sind rund um das Haus vorgesehen
  • Restaurants und Cafés befinden sich in fußläufiger Umgebung, auf dem Areal sind gastronomische Einrichtungen vorhanden

Ausstattung

  • Bodenbelag nach Mieterwunsch
  • Pendelleuchten aus stranggepresstem Aluminium mit Tageslichtsteuerung und Präsenzmelder
  • Hohlraumboden und Bodentanks für die IT-Verkabelung
  • Glasfaseranschluss in jede Miteinheit
  • mehrere Personenlifte
  • Raumhöhe von ca. 3,05 m
  • Heiz-/Kühlsegel zur individuellen Raumtemperaturregelung im Change-Over Betrieb
  • elektrisch bedienbarer, außen liegender Sonnenschutz
  • Metall-/Alu-Lammellenraffstores mit Tageslichtlenkung
  • Heiz-/Kühlsegel mit raumakustisch wirksamen Eigenschaften
  • mechanische Be- und Entlüftungsanlage mit hocheffizienter Wärmerückgewinnung mittels Rotationswärmetauscher
  • schwellenloser Zugang von der Tiefgarage in alle Mieteinheiten

Sonstiges

  • Stellplätze in der Tiefgarage (Mietpreis auf Anfrage) sowie Stellplätze mit Ladestationen stehen ausreichend zur Verfügung
  • ca. 50 Fahrradstellplätze im 1. UG mit direkter Anbindung an Duschen, Umkleiden und Aufzüge, Ladestationen für E-Bikes
  • Archivflächen (Preis auf Anfrage)
  • Verwaltungskosten-Pauschale: 4% der Nettomiete (separat zu NK-Vorauszahlung)
  • Gewerbesteuerhebesatz von 490 %
  • Zertifizierung nach DGNB und LEED (Gold) wird angestrebt
  • ein Energiebedarfsausweis (gültig bis 14. Februar 2033) liegt vor, der Endenergiebedarf für Wärme beträgt 68 kWh/(m²*a) und für Strom 31,0 kWh/(m²*a), wesentlicher Energieträger für die Heizung des Gebäudes ist Fernwärme (KWK)
Merkliste

Gerne senden wir Ihnen Exposés Ihrer Favoriten per Email zu.

Sie haben noch keine Favoriten gespeichert.

Vielen Dank
Wir werden uns so schnell
wie möglich mit Ihnen
in Verbindung setzen.
Objekt: 9858
Exposé anfordern

* Pflichtfelder bitte vor Absenden ausfüllen.