Breitwieser Roth Breitwieser Roth

Objekt: 12132

Vornehmer Altbau mit Eleganz und Stil

Nettokaltmiete / m2 38,00 €
Nebenkosten / m2 4,50 €
Fläche 175 m²
Teilbar ab 175 m²
80538 München Lehel
Bezug ab Juli 2026
Provision provisionsfrei für den Mieter

Beschreibung

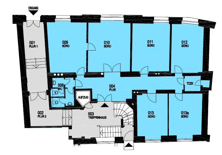
Der imposante Altbau mit seiner wunderschönen, strahlend weißen Stuckfassade liegt umgeben von ebenso repräsentativen Gebäuden direkt an der Isar. Über ein historisches Holztreppenhaus mit Lift gelangt man in die Büroetagen, die vor einigen Jahren komplett saniert wurden. Hierbei wurde Altes belassen und mit neuen Details ergänzt. Die Büros verfügen daher noch zum Teil über den ursprünglichen Parkettboden, Stuckdecken und historische Kassettentüren. Ein Altbaujuwel!

Lage

  • zwischen Prinzregentenstraße, Isar und Englischem Garten
  • U-Bahn Lehel oder Tram-Station Paradiesstraße
  • in der Umgebung befinden sich einige individuelle Läden und Geschäfte für den täglichen Bedarf
  • eine kleine, aber feine Auswahl an Restaurants und Cafés liegt in der Nähe

Ausstattung

  • schöner, zum Teil historischer Parkettboden
  • Beleuchtung mieterseits
  • Teeküche nach Absprache
  • IT-Verkabelung unter Putz (muss eventuell auf Ihren Bedarf angepasst werden)
  • Personenlift im Haus
  • Raumhöhe von ca. 3,20 m
  • zum Teil Stuckdecken

Sonstiges

  • Parklizenzgebiet
  • E-Ladesäulen mit 22kW vor dem Nachbarhaus
  • Archivflächen auf Anfrage
  • Gewerbesteuerhebesatz 490 %
  • die dargestellten Impressionen zeigen Ausbaubeispiele aus dem Gebäude
  • Flächenberechnung nach gif
  • ein Energiebedarfsausweis (gültig bis 28. März 2033) liegt vor, der Endenergiebedarf für Wärme beträgt 149 kWh/(m²*a) und für Strom 14 kWh/(m²*a), wesentlicher Energieträger für die Heizung des Gebäudes ist Fernwärme
Merkliste

Gerne senden wir Ihnen Exposés Ihrer Favoriten per Email zu.

Sie haben noch keine Favoriten gespeichert.

Vielen Dank
Wir werden uns so schnell
wie möglich mit Ihnen
in Verbindung setzen.
Objekt: 12132
Exposé anfordern

* Pflichtfelder bitte vor Absenden ausfüllen.