Breitwieser Roth Breitwieser Roth

Objekt: 11576

Unmittelbar an der U-Bahn … Moderne, gekühlte Bürofläche zu attraktivem Mietpreis

Nettokaltmiete / m2 26,50 €
Nebenkosten / m2 4 €
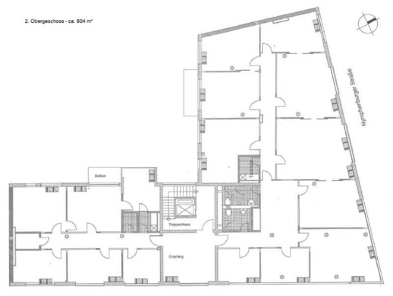
Fläche 604 m²
Teilbar ab 112 m²
80335 München Maxvorstadt
Bezug nach Vereinbarung
Provision provisionsfrei für den Mieter

Beschreibung

Das sechsgeschossige Wohn- und Geschäftshaus aus dem Jahr 2002 befindet sich in markanter Ecklage mit offenem Blick auf die Nachbarbebauung. Zur Straßenseite ist das Gebäude mit einer Granitfassade versehen, der Eingang erfolgt über ein repräsentatives Entrée. Die attraktive Bürofläche ist effizient in Team- und Einzelbüros aufgeteilt, ein Standard-Ausbau ist im Mietpreis enthalten. Ein tolles Büro in bester Geschäftslage!

Lage

  • zwischen Stiglmaier- und Rotkreuzplatz
  • U-Bahn oder Tram-Station Stiglmaierplatz, Hauptbahnhof ist fußläufig erreichbar
  • entlang der Nymphenburger Straße und rund um den Stiglmaierplatz befinden sich verschiedene Geschäfte für den täglichen Bedarf
  • nette Restaurants und Cafés findet man in den kleinen Seitenstraßen und der direkten Umgebung

Ausstattung

  • Teppichboden
  • Beleuchtung vorhanden
  • moderne, kleine Teeküche
  • Hohlraumboden für IT-Verkabelung
  • Personenlift
  • Raumhöhe von ca. 2,80 m
  • außen liegender Sonnenschutz
  • Heizung und Kühlung über dezentrale Lüftungsgeräte
  • Balkon

Sonstiges

  • TG-Stellplätze können angemietet werden (Mietpreis auf Anfrage)
  • 21 m² Archivflächen im Untergeschoss (Mietpreis auf Anfrage)
  • öffentliche E-Ladestation (4 x Typ 2 22 kw) in ca. 5 Geminuten entfernt
  • Gewerbesteuerhebesatz 490 %
  • ein Energiebedarfsausweis liegt vor, der Bedarfskennwert für Wärme beträgt 103,4 kWh/(m²*a) und für Strom 25,6 kWh/(m²*a), wesentlicher Energieträger für die Heizung des Gebäudes ist Gas
Merkliste

Gerne senden wir Ihnen Exposés Ihrer Favoriten per Email zu.

Sie haben noch keine Favoriten gespeichert.

Vielen Dank
Wir werden uns so schnell
wie möglich mit Ihnen
in Verbindung setzen.
Objekt: 11576
Exposé anfordern

* Pflichtfelder bitte vor Absenden ausfüllen.