Breitwieser Roth Breitwieser Roth

Objekt: 9602

Unbegrenzte Möglichkeiten … Ob Büro, Showroom, Loft, Servicefläche oder leichte Produktion

Nettokaltmiete / m2 ab 11,80 € €
Nebenkosten / m2 4 €
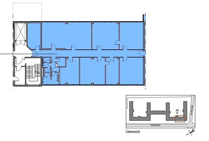
Fläche 311 m²
Teilbar ab 311 m²
81829 München Trudering / Riem
Bezug nach Vereinbarung
Provision provisionsfrei für den Mieter

Beschreibung

Der 2-geschossige Gebäudekomplex befindet sich verkehrsgünstig gelegen im Gewerbegebiet ‚Am Moosfeld‘ und bietet neben klassischen Büroflächen auch Serviceflächen oder Showrooms. Jeder Gebäudeteil verfügt über einen eigenen Eingang mit Laderampe zum Innenhof und Lastenaufzüge bis zu 1.250 kg. Die zur Verfügung stehenden Flächen werden je nach Bedarf und Funktion individuell um- und ausgebaut. Durch die hohe Flexibilität in der Nutzung ist der Mietermix breit gefächert: vom Showroom einer Baustofffirma, über eine Kindereinrichtung, Fitnessstudio bis zum chic ausgestatteten Architekturbüro mit Dachterrasse ist alles dabei.

Lage

  • zwischen A94 und Wasserburger Landstraße, im Gewerbegebiet 'Am Moosfeld'
  • U-Bahn Am Moosfeld oder Bushaltestation vor der Tür
  • ca. 10 Gehminuten bis zu einem kleinen Einkaufszentrum mit Supermarkt und Drogerie, im Haus befindet sich eine Kinderkrippe und ein Kindergarten
  • im Haus bietet ein Fitnessstudio Snacks für die Mittagspause an, ansonsten sorgen Kantinen im Umfeld für eine gute Versorgung in der Mittagszeit

Ausstattung

  • Bodenbelag nach Mieterwunsch
  • Rasterdeckenleuchten
  • zum Teil IT-Verkabelung vom Vormieter (muss eventuell auf Ihren Bedarf angepasst werden)
  • Personen- und Lastenlifte in den Eingängen
  • Raumhöhe von ca. 2,80 m
  • außen liegender Sonnenschutz
  • Laderampen an allen Eingängen im Innenhof

Sonstiges

  • Außenstellplätze (à € 65,00 zzgl. gesetzl. MwSt.) und überdachte Stellplätze (à € 75,00 zzgl. gesetzl. MwSt.) können angemietet werden
  • 4 öffentliche E-Ladesäulen (11 kW Type 2) sind in 8 Gehminuten zu erreichen
  • Archivflächen in unterschiedlichen Größen im Keller (ab € 9,00 /m² zzgl. gesetzl MwSt.)
  • Gewerbesteuerhebesatz von 490 %
  • die dargestellten Impressionen zeigen Ausbaubeispiele aus dem Gebäude
  • ein Energiebedarfsausweis liegt vor, der Endenergiebedarf für Wärme beträgt 140,5 kWh/(m²*a) und für Strom 14,2 kWh/(m²*a), wesentlicher Energieträger für die Heizung des Gebäudes ist Erdgas
Merkliste

Gerne senden wir Ihnen Exposés Ihrer Favoriten per Email zu.

Sie haben noch keine Favoriten gespeichert.

Vielen Dank
Wir werden uns so schnell
wie möglich mit Ihnen
in Verbindung setzen.
Objekt: 9602
Exposé anfordern

* Pflichtfelder bitte vor Absenden ausfüllen.