Breitwieser Roth Breitwieser Roth

Objekt: 11889

Traumbüro in elegantem Neubau

Nettokaltmiete / m2 32,00 €
Nebenkosten / m2 4,50 €
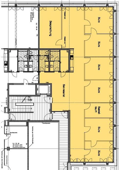
Fläche 338 m²
Teilbar ab 338 m²
80339 München Schwanthalerhöhe
Bezug nach Vereinbarung
Provision provisionsfrei für den Mieter

Beschreibung

Das hochwertig ausgestattete Büro befindet sich in einem der architektonisch gelungensten Neubauten am Standort Theresienhöhe. Das Gebäude zeichnet sich vor allem durch seine stufenförmigen, mit Ahorn bepflanzten Terrassen, die hochwertigen Materialien und das große Atrium im Eingang aus. Die Bürofläche befindet sich im 2. Obergeschoss und ist modern ausgebaut. Sie kann den Wünschen des zukünfigen Mieters angepasst werden.

Lage

  • zwischen Heimeranplatz und Theresienwiese
  • U-Bahn Schwanthalerhöhe direkt vor der Tür
  • ca. 2 Gehminuten bis zum Zentrum Theresie mit vielen Geschäften für den täglichen Bedarf
  • einige Restaurants und Cafés befinden sich in den Seitenstraßen, ein schöner Biergarten liegt unweit entfernt

Ausstattung

  • Kombination aus Vinylparkett und Teppichboden, neuer Bodenbelag nach Absprache
  • arbeitsgerechte Pendelleuchten in den Büros, Spots im Flurbereich
  • Hohlraumboden für die IT-Verkabelung
  • Glasfaseranschluss im Haus
  • Personenlift im Haus
  • schöne Raumhöhe von ca. 2,80 m
  • außen liegender, elektrischer Sonnenschutz
  • gekühlter Serverraum

Sonstiges

  • Stellplätze auf Anfrage in der hauseigenen Tiefgarage (Mietpreis auf Anfrage)
  • 4 öffentliche E-Ladesäulen (22 kW Type 2) sind in 1 Gehminute zu erreichen
  • Kellerraum auf Anfrage möglich
  • Gewerbesteuerhebesatz von 490 %
  • ein Energiebedarfsausweis liegt vor (gülig bis 09. April 2034), der Endenergiebedarf für Wärme beträgt 107 kWh/(m²*a) und für Strom 19 kWh/(m²*a), wesentlicher Energieträger für die Heizung des Gebäudes ist Fernwärme
Merkliste

Gerne senden wir Ihnen Exposés Ihrer Favoriten per Email zu.

Sie haben noch keine Favoriten gespeichert.

Vielen Dank
Wir werden uns so schnell
wie möglich mit Ihnen
in Verbindung setzen.
Objekt: 11889
Exposé anfordern

* Pflichtfelder bitte vor Absenden ausfüllen.