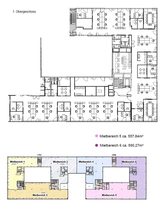
Beschreibung
Das elegante Geschäftshaus besticht durch seine großzügige Unterteilung und bietet ein repräsentatives Entrée sowie Dachterrassen und Innenhöfe zur Nutzung für alle Mieter. Die Fassade spielt mit dunklen Farben und viel Glas. Die Flächen können individuell nach den Wünschen der Mieter umgebaut werden. Durch die Lage im nördlichen Schwabing an der Leopoldstraße besteht eine hervorragende Anbindung sowohl in Richtung Flughafen als auch in Richtung Innenstadt und Mittlerem Ring.
Lage
- zwischen Domagkstraße und Mittlerem Ring
- Bushaltestelle vor der Tür, Tram Anni-Albers-Straße, U-Bahn Milbertshofen
- wenige Gehminuten bis zur Parkstadt Schwabing mit einigen Geschäften, Restaurants und Cafés, ein Bistro befindet sich im Haus
Ausstattung
- Bodenbelag nach Absprache
- abgependelte Leuchten
- Hohlraumboden für IT-Verkabelung
- Glasfaseranschluss von m-net im Haus vorhanden
- 6 Personenlifte
- Duschen auf Anfrage möglich
- lichte Höhe von ca. 3,00 m
- mechanische Be- und Entlüftung
- Kühlung durch thermoaktive Betondecke
- außen liegender Sonnenschutz (elektrisch)
- Sonnenschutzverglasung
- 3 Dachterrassen und 2 Innenhöfe
Sonstiges
- Stellplätze in der Tiefgarage (à € 145,00 zzgl. gesetzl. MwSt.)
- E-Ladesäulen mit 22kW ca. 450 m enternt
- Archivflächen im Keller ab 13 m² ( 9,00 €/m² zzgl. gesetzl. MwSt.)
- Gewerbesteuerhebesatz 490%
- DGNB-Zertifizierung in Silber
- die dargestellten Impressionen zeigen Ausbaubeispiele aus dem Gebäude
- ein Energiebedarfsausweis (gültig bis 13. Dezember 2033) liegt vor, der Endenergiebedarf für Wärme beträgt 112,6 kWh/(m²*a) und für Strom 64,9 kWh/(m²*a), wesentlicher Energieträger für die Heizung des Gebäudes ist Fernwärme