Breitwieser Roth Breitwieser Roth

Objekt: 7236

Top-Büros vor Münchens Toren

Nettokaltmiete / m2 ab 11,00 €
Nebenkosten / m2 4 €
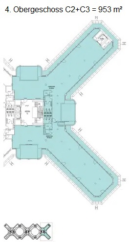
Fläche 953 m²
Teilbar ab 581 m²
85609 Aschheim Umland Nord-Ost
Bezug nach Vereinbarung
Provision provisionsfrei für den Mieter

Beschreibung

Der attraktive Gebäudekomplex NEXT Dornach mit einer Gesamtfläche von 50.000 Quadratmetern besteht aus drei Sternen, die sich um zwei Innenhöfe schließen. Außen hübsch begrünt bietet das Innere des Gebäudes seinen Nutzern reichhaltigen Komfort. Die Bürofläche werden nach den Wünschen und Bedürfnissen des neuen Mieters ausgebaut. Im 5. Obergeschoss stehen zusätzlich zwei Dachterrassen zur exklusiven Nutzung zur Verfügung. Eine Kantine, ein Coffeeshop und ein hauseigenes Fitnessstudio sorgen für Abwechlsung in der Mittagspause.

Lage

  • im Gewerbegebiet Dornach, an der A 94
  • S-Bahn Riem in ca. 10 Minuten zu Fuß erreichbar, Bushaltestelle vor der Tür
  • ein Supermarkt und mehrere Hotels liegen in der Nähe, im Gebäude ist ein Fitnessstudio untergebracht
  • im Haus befindet sich eine Kantine und ein Coffeeshop, ein paar Hotelrestaurants sind im nahen Umfeld

Ausstattung

  • Bodenbelag nach Absprache mit dem neuen Mieter
  • Beleuchtung nach Absprache
  • Kabelkanäle für die IT-Verkabelung (muss eventuell auf Ihren Bedarf angepasst werden)
  • Glasfaseranschluss im Objekt vorhanden
  • Personenlift in Haus
  • lichte Raumhöhe von ca. 3,30 m
  • außen liegender elektrischer Sonnenschutz
  • mechanische Be- und Entlüftung
  • Zugangskontrollsystem
  • Achsmaß von 1,16 m

Sonstiges

  • es stehen ausreichend Stellplätze (à € 75,00 zzgl. gesetzl. MwSt.) in der Tiefgarage zur Verfügung
  • auf dem Gelände befinden sich 2 öffentliche E-Ladesäulen Typ 2 22 kW
  • Archivflächen können im Untergeschoss angemietet werden ( ab € 6,00 /m² zzgl. € 4,00 Nebenkosten und gesetzl MwSt.)
  • zusätzlich zu den Nebenkosten wird eine Kantinenpauschale (à € 0,30 / m² zzgl. gesetzl. MwSt.) berechnet
  • Gewerbesteuer-Hebesatz: 310 %
  • die Höhe der Miete ist abhängig vom Ausbaustandard und der Mietlaufzeit
  • BREEAM Zertifizierung erfolgt
  • ein Energiebedarfsausweis (gültig bis 07. Juli 2024) liegt vor, der Endenergiebedarf für Wärme beträgt 64,2 kWh/(m²*a) und für Strom 30,4 kWh/(m²*a), wesentlicher Energieträger für die Heizung des Gebäudes ist Erdgas
Merkliste

Gerne senden wir Ihnen Exposés Ihrer Favoriten per Email zu.

Sie haben noch keine Favoriten gespeichert.

Vielen Dank
Wir werden uns so schnell
wie möglich mit Ihnen
in Verbindung setzen.
Objekt: 7236
Exposé anfordern

* Pflichtfelder bitte vor Absenden ausfüllen.