Breitwieser Roth Breitwieser Roth

Objekt: 1794

Top-Büros in toller Lage

Nettokaltmiete / m2 16,00 €
Nebenkosten / m2
Fläche 130 m²
Teilbar ab 130 m²
80336 München Ludwigsvorstadt-Isarvorstadt
Bezug nach Vereinbarung
Provision provisionsfrei für den Mieter

Beschreibung

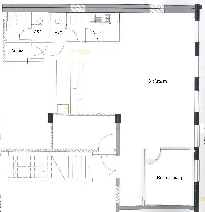
Der markante Bau mit anthrazitfarbener Natursteinfassade liegt unweit des Beethovenplatzes umgeben von imposanten Altbauten. Über ein großzügiges, sehr repräsentatives Foyer gelangt man in das offen gestaltete Büro. Ein kleiner Besprechungsraum wurde abgetrennt, eine weitere Aufteilung der Fläche könnte vorgenommen werden. Durch die großen Fensterflächen und die Abböschung ist das Büro trotz der Lage im Souterrain sehr hell und ansprechend.

Lage

  • zwischen Goethe-, Lindwurm- und Herzog-Heinrich-Straße
  • U-Bahn Goetheplatz
  • ca. 7 Gehminuten bis zur Lindwurmstraße mit zahlreichen Einkaufsmöglichkeiten
  • ein paar Restaurants und Cafés befinden sich in unmittelbarer Nähe

Ausstattung

  • neuer Bodenbelag nach Mieterwunsch
  • arbeitsplatzgerechte Beleuchtung
  • neue Teeküche nach Absprache
  • IT-Verkabelung vom Vormieter (muss eventuell auf Ihren Bedarf angepasst werden, gegen Ablöse)
  • Personenlift im Haus
  • Raumhöhe von ca. 2,80 m
  • außen liegender Sonnenschutz

Sonstiges

  • Duplex-Stellplätze (à € 110,00 zzgl. gesetzl. MwSt.) können in der Tiefgarage angemietet werden
  • E-Ladesäulen mit 22 kW auf der gegenüber liegenden Straßenseite
  • Archivflächen auf Anfrage
  • Gewerbesteuerhebesatz: 490%
  • die dargestellten Impressionen zeigen Ausbaubeispiele aus dem Gebäude
  • ein Energieverbrauchsausweis (gültig bis 12. Mai 2030) liegt vor, der Verbrauchskennwert für Wärme beträgt 79,9 kWh/(m²*a) und für Strom 38,2 kWh/(m²*a), wesentlicher Energieträger für die Heizung des Gebäudes ist Erdgas
Merkliste

Gerne senden wir Ihnen Exposés Ihrer Favoriten per Email zu.

Sie haben noch keine Favoriten gespeichert.

Vielen Dank
Wir werden uns so schnell
wie möglich mit Ihnen
in Verbindung setzen.
Objekt: 1794
Exposé anfordern

* Pflichtfelder bitte vor Absenden ausfüllen.