Breitwieser Roth Breitwieser Roth

Objekt: 12045

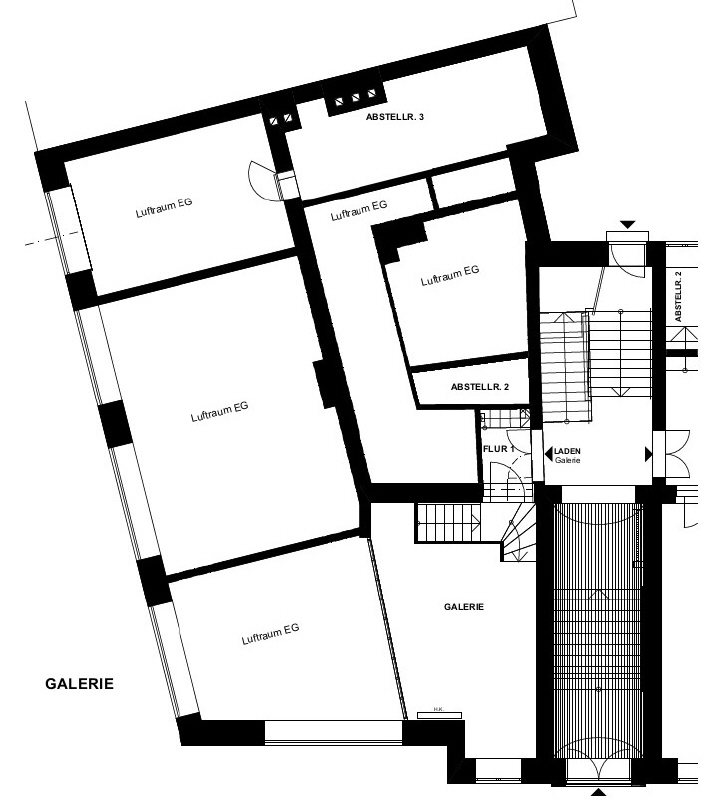
Tolles Altbaubüro im Herzen Schwabings

Nettokaltmiete / m2 23,00 €
Nebenkosten / m2 3 €
Fläche 207 m²
Teilbar ab 207 m²
80796 München Schwabing
Bezug nach Vereinbarung
Provision provisionsfrei für den Mieter

Beschreibung

Das außergewöhnliche Büro befindet sich im Erdgeschoss eines schönen Altbaus im Herzen Schwabings. Große Büroräume, hohe Decken und große Fenster verleihen dem Objekt ein angenehmes Ambiente. Ein tolles Plus ist die Galerie, die der Fläche noch einmal einen besonderen Charme verleiht. Das einzigartige Büro eignet sich als stylische Agenturfläche aber auch für andere Branchen, die ein charaktervolles Büro suchen.

Lage

  • zwischen Hohenzollern- und Elisabethstraße
  • U-Bahn Hohenzollernplatz
  • in der direkter Umgebung sind Einkaufsmöglichkeiten des täglichen Bedarfs zu finden
  • eine Vielzahl an trendigen Restaurants und Cafés befinden sich im Umfeld

Ausstattung

  • Fischgrät-Parkett
  • Beleuchtung mieterseits
  • Teeküche
  • 1 WC
  • IT-Verkabelung mieterseits
  • kein Personenlift vorhanden
  • beeindruckende Raumhöhe von ca. 5,00 m
  • innen liegender Blendschutz

Sonstiges

  • Parklizenzbereich
  • 4 öffentliche E-Ladestationen (22 kW Type 2) direkt vor dem Gebäude
  • Gewerbesteuerhebesatz von 490 %
  • Energieausweis / Hinweis zur EnEV 2014: Zum Zeitpunkt der Erstellung und Veröffentlichung dieser Anzeige lag uns für die Immobilie kein Energieausweis vor, dessen Kennwerte nach § 16a der Energieeinsparverordnung ab dem 01. Mai 2014 in der Anzeige anzugeben wären. Hiervon unberührt bleibt die Verpflichtung des Vermieters / Verpächters bzw. Verkäufers der Immobilie, einen gültigen Energieausweis erstellen zu lassen und nach Maßgabe des § 16 Abs. 2 EnEV 2014 vorzulegen.
Merkliste

Gerne senden wir Ihnen Exposés Ihrer Favoriten per Email zu.

Sie haben noch keine Favoriten gespeichert.

Vielen Dank
Wir werden uns so schnell
wie möglich mit Ihnen
in Verbindung setzen.
Objekt: 12045
Exposé anfordern

* Pflichtfelder bitte vor Absenden ausfüllen.