Breitwieser Roth Breitwieser Roth

Objekt: 7243

Terrassen … Begrünte Innenhöfe … Schicke Büros … Was will man mehr?

Nettokaltmiete / m2 ab 11,00 €
Nebenkosten / m2 4 €
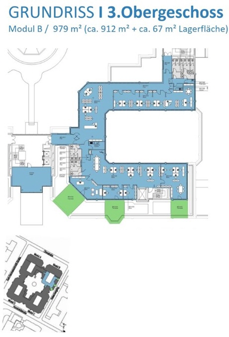
Fläche 979 m²
Teilbar ab 451 m²
85609 Aschheim Umland Nord-Ost
Bezug nach Vereinbarung
Provision provisionsfrei für den Mieter

Beschreibung

Der attraktive Bürokomplex wurde 1997 gebaut und besteht aus 4 modularen Baukörpern, die durch einen neu gestalteten Innenhof miteinander verbunden sind. Die Gebäude wurden sukzessive modernisiert. So wurden unter anderem die Zugänge und Eingangsbereiche sowie die Treppenhäuser hochwertig saniert. Die Büros bieten neben flexiblen Grundrissen und schönem Ausblick auf den grünen Innenhof viele Gestaltungsmöglichkeiten und zum Teil Terrassen für entspannte Mittagspausen.

Lage

  • im Gewerbegebiet Dornach, an der A 94
  • S-Bahn Riem und Bushaltestelle vor der Tür
  • ein Supermarkt und mehrere Hotels liegen in der Nähe, im Gebäude bietet eine KITA Betreuungsplätze an
  • im Haus befindet sich eine Kantine, ein paar Hotelrestaurants sind im nahen Umfeld
  • Fitnesscenter auf dem Gelände

Ausstattung

  • Bodenbelag nach Mieterwunsch, vorgesehen ist ein Teppichboden
  • in die Decke integrierte Rasterleuchten
  • Fensterbankkanäle für die IT-Verkabelung
  • Glasfaseranschluss im Gebäude vorhanden
  • Personenlift im Haus
  • normale Raumhöhe von ca. 2,80 m
  • außen liegender elektrischer Sonnenschutz
  • optional Kühlung mit Grundwasser
  • Achsmaß von ca 1,35 m

Sonstiges

  • TG-Stellplätze (à € 75,00 zzgl. gesetzl. MwSt.) und Außenstellplätze (à € 45,00 zzgl. ges. MwSt.) anmietbar. Stellplatzschlüssel: 120 m²/Stellplatz
  • PKW-Stellplätze mit öffentlichen E-Charger
  • Archivflächen vorhanden (à € 11,00/m² zzgl. € 6,00/m² Nebenkosten und gesetzl. MwSt.)
  • Gewerbesteuerhebesatz: 310 %
  • ein Energieverbrauchsausweis (gültig bis 30. Januar 2033) liegt vor, der Verbrauchskennwert für Wärme beträgt 77,3 kWh/(m²*a) und für Strom 12,7 kWh/(m²*a), wesentlicher Energieträger für die Heizung des Gebäudes ist Fernwärme
Merkliste

Gerne senden wir Ihnen Exposés Ihrer Favoriten per Email zu.

Sie haben noch keine Favoriten gespeichert.

Vielen Dank
Wir werden uns so schnell
wie möglich mit Ihnen
in Verbindung setzen.
Objekt: 7243
Exposé anfordern

* Pflichtfelder bitte vor Absenden ausfüllen.