Breitwieser Roth Breitwieser Roth

Objekt: 12288

Stylischer Neubau in Gräfelfing

Nettokaltmiete / m2 23,50 €
Nebenkosten / m2 4,90 €
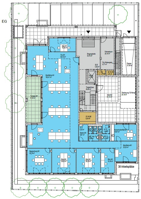
Fläche 1.298 m²
Teilbar ab 1.298 m²
82166 Gräfelfing Umland Süd-West
Bezug nach Vereinbarung
Provision provisionsfrei für den Mieter

Beschreibung

Das chice Büro- und Laborgebäude in Stahlbetonskelettbauweise überzeugt mit großen Galeriefenstern, moderner Ausstattung und nachhaltiger Technik. Üppige Begrünung und Terrassenflächen in jeder Etage schaffen ein angenehmes Arbeitsumfeld. Durch die flexible Raumgestaltung werden keine Wünsche offen gelassen.

Lage

  • zwischen Pasing und Martinsried, direkt an der Auffahrt zur A96
  • S-Bahn Gräfelfing oder Bus (Haltestelle 150 m entfernt)
  • einige Geschäfte für den täglichen Bedarf liegen in der nahen Umgebung

Ausstattung

  • Bodenbelag nach Absprache
  • Deckenrasterleuchten
  • Bodentanks für die IT-Verkabelung
  • Personenlift mit einer Traglast von 1.250 kg
  • Duschen
  • lichte Raumhöhe von ca. 3,30 m
  • außen liegender, elektronischer Sonnenschutz
  • Betonkernaktivierung
  • Terrasse auf jeder Etage
  • Zugangkartenlesesystenm
  • Achsmaß von ca. 1,25 m

Sonstiges

  • 7 Außenstellplätze und 26 Tiefgaragenstellplätze (Preis auf Anfrage) werden zur Verfügung stehen
  • E-Ladesäulen in der Tiefgarage vorhanden
  • ebenerdige Fahrradgarage
  • Archivflächen (Preis auf Anfrage) verfügbar
  • Gewerbesteuerhebesatz von 250 %
  • die dargestellten Impressionen zeigen Ausbaubeispiele aus dem Gebäude
  • angestrebte Zertifizierung: Wired Score Gold oder Platin
  • Energieausweis / Hinweis zur EnEV 2014: Zum Zeitpunkt der Erstellung und Veröffentlichung dieser Anzeige lag uns für die Immobilie kein Energieausweis vor, dessen Kennwerte nach § 16a der Energieeinsparverordnung ab dem 01. Mai 2014 in der Anzeige anzugeben wären. Hiervon unberührt bleibt die Verpflichtung des Vermieters / Verpächters bzw. Verkäufers der Immobilie, einen gültigen Energieausweis erstellen zu lassen und nach Maßgabe des § 16 Abs. 2 EnEV 2014 vorzulegen.
Merkliste

Gerne senden wir Ihnen Exposés Ihrer Favoriten per Email zu.

Sie haben noch keine Favoriten gespeichert.

Vielen Dank
Wir werden uns so schnell
wie möglich mit Ihnen
in Verbindung setzen.
Objekt: 12288
Exposé anfordern

* Pflichtfelder bitte vor Absenden ausfüllen.