Breitwieser Roth Breitwieser Roth

Objekt: 12096

So arbeitet man heute!

Nettokaltmiete / m2 ab 14,50 €
Nebenkosten / m2
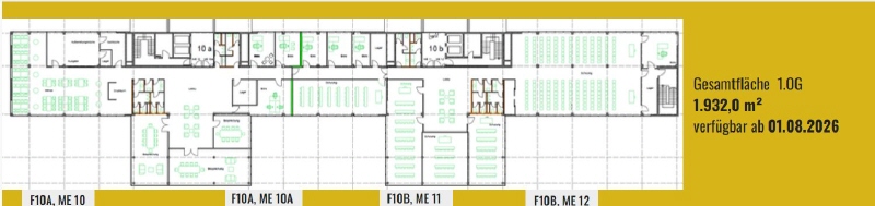
Fläche 3.791 m²
Teilbar ab 283 m²
85774 Unterföhring Umland Nord-Ost
Bezug ab August 2026
Provision provisionsfrei für den Mieter

Beschreibung

Das moderne Bürogebäude mit zeitgemäßer Glasfassade liegt verkehrsgünstig im Gewerbegebiet Feringastraße. Umgeben von attraktiv begrünten Innenhöfen erreicht man die Büros über stylische Eingangsbereiche. Von den Büros im Dachgeschoss blickt man bei gutem Wetter bis zu den Bergen. Attraktiv ist auch der niedrige Gewerbesteuerhebesatz von 330.

Lage

  • zwischen Münchner Straße, Cosimastraße und Föhringer Ring
  • Bushaltestelle in fußläufiger Nähe
  • in dem Gebiet gibt es ein Einkaufszentrum sowie mehrere, weitere Geschäfte und ein Hotel
  • ein paar Möglichkeiten für die Mittagspause liegen ebenfalls in der Nähe

Ausstattung

  • Teppichboden
  • Stehleuchten
  • Bodentanks für die IT-Verkabelung
  • Glasfaseranschluss z.B.über DTAG,Colt, Kabel Deutschland/Vodafone
  • 2 Personenlifts in allen Foyers
  • lichte Raumhöhe von ca. 3,00 m
  • Kühldecken (optional)
  • außen liegender Sonnenschutz

Sonstiges

  • Außen- und Tiefgaragenstellplätze (à € 50,00 bis € 80,00 zzgl. gesetzl. MwSt.) können angemietet werden (mit Ladestation für Elektroautos)
  • ausreichend Archivflächen im Keller (à € 8,00 /m² zzgl. gesetzl MwSt.)
  • BREEAM sehr gut Zertifizierung
  • Ökostrom CO2 freie Fernwärme aus Geothermie
  • die dargestellten Impressionen zeigen Ausbaubeispiele aus dem Gebäude
  • ein Energieverbrauchsausweis (gültig bis 11. April 2031) liegt vor, der Verbrauchskennwert für Wärme beträgt 51,7 kWh/(m²*a) und für Strom 13,6 kWh/(m²*a), wesentlicher Energieträger für die Heizung des Gebäudes ist Fernwärme
Merkliste

Gerne senden wir Ihnen Exposés Ihrer Favoriten per Email zu.

Sie haben noch keine Favoriten gespeichert.

Vielen Dank
Wir werden uns so schnell
wie möglich mit Ihnen
in Verbindung setzen.
Objekt: 12096
Exposé anfordern

* Pflichtfelder bitte vor Absenden ausfüllen.