Breitwieser Roth Breitwieser Roth

Objekt: 12152

Schöne Aussichten zu vermieten!

Nettokaltmiete / m2 21,50 €
Nebenkosten / m2 3,50 €
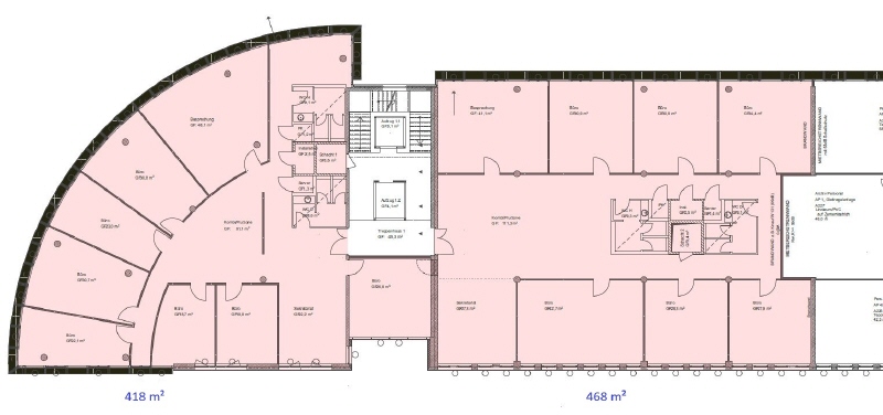
Fläche 416 m²
Teilbar ab 416 m²
80339 München Laim
Bezug nach Vereinbarung
Provision provisionsfrei für den Mieter

Beschreibung

Das im Jahr 2004 errichtete Gebäude erfüllt alle Ansprüche an ein modernes Bürohaus. Die Immobilie bietet moderne und nachhaltige Büroflächen, eingebettet in einer Symbiose aus zeitgemäßer Architektur mit viel Glas und effizienter Funktionalität. Der Ausbau ist komplett flexibel und kann sowohl in abgetrennte Büros als auch in Open-Space-Bereiche aufgeteilt werden. Im Nachbargebäude befindet sich eine Kantine, die von allen Mietern genutzt werden kann.

Lage

  • im Münchner Westen zwischen Donnersberger- und Friedenheimer Brücke
  • Tramhaltestellen Barthstraße und Trappentreustraße (Linien 18 und 19) mit direkter Verbindung zum Hauptbahnhof, S-Bahn-Haltestellen Donnersbergerbrücke oder Hirschgarten sind in 8-10 Minuten fußläufig erreichbar
  • viele Geschäfte des täglichen Bedarfs im benachbarten Westend oder an der Friedenheimer Brücke
  • gute Auswahl an kleinen Restaurants und Cafés im nahe gelegenen Westend

Ausstattung

  • Teppichboden, neuer Bodenbelag nach Mieterwunsch
  • Teeküche nach Absprache
  • durchgehender Hohlraumboden für die IT-Verkabelung
  • Glaspersonenlift
  • schöne Raumhöhe von ca. 2,80 m
  • Betonkernaktivierung
  • außen liegender, elektrischer Sonnenschutz

Sonstiges

  • Stellplätze können in der Tiefgarage angemietet werden (à € 90,00 zzgl. gesetzl. MwSt.)
  • 4 E-Ladesäulen mit 22 kW ca. 3 Gehminuten entfernt
  • Archivflächen auf Anfrage
  • Gewerbesteuerhebesatz: 490%
  • die dargestellten Impressionen zeigen Ausbaubeispiele aus dem Gebäude
  • ein Energieverbrauchsausweis liegt vor, der Verbrauchskennwert für Wärme beträgt 88,3 kWh/(m²*a) und für Strom 101,2 kWh/(m²*a), wesentlicher Energieträger für die Heizung des Gebäudes ist Erdgas
Merkliste

Gerne senden wir Ihnen Exposés Ihrer Favoriten per Email zu.

Sie haben noch keine Favoriten gespeichert.

Vielen Dank
Wir werden uns so schnell
wie möglich mit Ihnen
in Verbindung setzen.
Objekt: 12152
Exposé anfordern

* Pflichtfelder bitte vor Absenden ausfüllen.