Breitwieser Roth Breitwieser Roth

Objekt: 11632

Schickes Büro mit gutem Anschluss an die Stammstrecke

Nettokaltmiete / m2 19,50 €
Nebenkosten / m2 3,50 €
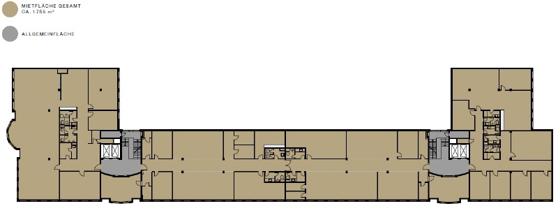
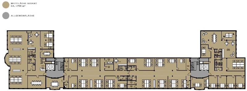
Fläche 1.755 m²
Teilbar ab 430 m²
80687 München Laim
Bezug nach Vereinbarung
Provision provisionsfrei für den Mieter

Beschreibung

Umgeben von einer tollen Infrastruktur lässt es sich in dem hochwertig gestalteten Bürohaus angenehm und ruhig arbeiten. Über einen lichtdurchfluteten Eingangsbereich und dem Lift erreicht man die attraktiv gestalteten Büroflächen. Die Ausstattung kann individuell den Wünschen des Mieters noch angepasst werden. Eine gute Gelegenheit, im Münchner Westen anzumieten!

Lage

  • zwischen Westend-, Barth- und Landsberger Straße gelegen
  • U-Bahn Westendstraße oder S-Bahn Friedenheimer Brücke, Bus vor der Tür
  • in der direkten Nachbarschaft befindet sich ein hochwertiger Supermarkt für schnelle Einkäufe sowie weitere Läden für den täglichen Bedarf
  • gute Auswahl an Restaurants und Bistros in der Nähe

Ausstattung

  • Teppichboden
  • abgehängte Pendelleuchten
  • Doppelboden für die IT-Verkabelung
  • Personenlift
  • schöne Raumhöhe von 3,00 m
  • außen liegender Sonnenschutz
  • Teilklimatisierung möglich

Sonstiges

  • es sind Stellplätze in der Tiefgarage (à € 110,00 zzgl. gesetzl. MwSt.) anmietbar
  • 4 öffentliche E-Ladestationen (22 kW Type 2) sind in 6 Gehminuten entfernt
  • Kellerraum auf Anfrage
  • Gewerbesteuerhebesatz von 490 %
  • ein Energieverbrauchsausweis (gültig bis 31. Januar 2031) liegt vor, der Verbrauchskennwert für Wärme beträgt 105 kWh/(m²*a) und für Strom 8 kWh/(m²*a), wesentlicher Energieträger für die Heizung des Gebäudes ist Erdgas
Merkliste

Gerne senden wir Ihnen Exposés Ihrer Favoriten per Email zu.

Sie haben noch keine Favoriten gespeichert.

Vielen Dank
Wir werden uns so schnell
wie möglich mit Ihnen
in Verbindung setzen.
Objekt: 11632
Exposé anfordern

* Pflichtfelder bitte vor Absenden ausfüllen.