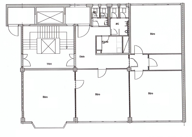
Beschreibung
In dem modernen Bürohaus aus den 90er Jahren findet man ökonomische und sehr variable Flächen, die sehr hochwertig und zeitgemäß ausgestattet wurden. Die Fassade des Gebäudes wurde erst vor kurzem komplett saniert und farbig in stylischem schwarz-weiß neu gestaltet. Das Büro befindet sich im 5. Obergeschoss, ist renoviert und mit einem schönen Eichendielenboden ausgestattet.
Lage
- zwischen Boschetsrieder- und Kistlerhofstraße
- U-Bahn Aidenbachstraße
- ca. 5 Gehminuten bis zur Boschetsrieder Straße mit einigen Geschäften für den täglichen Bedarf
- einige Restaurants befinden sich in direkter Nähe
Ausstattung
- Eichendielenboden
- weiße Kunststofffenster
- neuwertige Deckenleuchten
- Teeküche
- Kabelkanäle für die IT-Verkabelung
- Personenlift im Haus
- Raumhöhe von ca. 3,00 m
- außen liegender Sonnenschutz
Sonstiges
- Außen- und Tiefgaragenstellplätze können angemietet werden (Mietpreis auf Anfrage)
- 4 E-Ladesäulen mit 22 kW in ca. 3 Gehminuten entfernt
- Archivflächen auf Anfrage
- Gewerbesteuerhebesatz: 490%
- die dargestellten Impressionen zeigen zum Teil Ausbaubeispiele aus dem Gebäude
- Energieausweis / Hinweis zur EnEV 2014: Zum Zeitpunkt der Erstellung und Veröffentlichung dieser Anzeige lag uns für die Immobilie kein Energieausweis vor, dessen Kennwerte nach § 16a der Energieeinsparverordnung ab dem 01. Mai 2014 in der Anzeige anzugeben wären. Hiervon unberührt bleibt die Verpflichtung des Vermieters / Verpächters bzw. Verkäufers der Immobilie, einen gültigen Energieausweis erstellen zu lassen und nach Maßgabe des § 16 Abs. 2 EnEV 2014 vorzulegen.