Breitwieser Roth Breitwieser Roth

Objekt: 8676

Schicke Bürofläche im Orleanskarree

Nettokaltmiete / m2 22,50 €
Nebenkosten / m2 3,50 €
Fläche 714 m²
Teilbar ab 555 m²
81669 München Au-Haidhausen
Bezug nach Vereinbarung
Provision provisionsfrei für den Mieter

Beschreibung

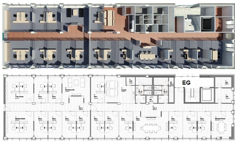
Mit seiner klaren Architektur, der eleganten Natursteinoptik und lebendigen Farbakzenten in Magenta und Türkis überzeugt das Orleanskarree als moderner Standort für Unternehmen, die Wert auf Stil, Dynamik und eine inspirierende Arbeitsatmosphäre legen. Das repräsentative Büroensemble mit seinen großzügig gestalteten Eingangsbereichen gruppiert sich um einen attraktiv begrünten Innenhof. Die Mieteinheiten sind überwiegend über mehrere Gebäudeteile verbunden, sodass auch größere, zusammenhängende Büroflächen realisiert werden können. Die Fläche wurde vor wenigen Jahren hochwertig ausgebaut, unter anderem mit Glastrennwänden und Kühlwänden, und kann kurzfristig übernommen werden.

Lage

  • zwischen Rosenheimer Platz und Mittlerem Ring
  • U- und S-Bahn Ostbahnhof, Bus vor der Tür
  • ca. 5 Gehminuten bis zum Ostbahnhof und dessen Vorplatz mit allen Geschäften des täglichen Bedarfs
  • im Umfeld findet man eine große Anzahl an kleinen Restaurants, Bistros und Cafés

Ausstattung

  • neuwertiger Teppichboden sowie Vinylparkett im Flur
  • Einbauleuchten
  • CAT5-Verkabelung über Fensterbank-Kabelkanäle (muss evtl. auf Ihren Bedarf angepasst werden)
  • Glasfaseranschluss im Haus
  • normale Raumhöhe
  • Personenlift
  • Kühlwände
  • Anschlussmöglichkeit zur zentralen Kälte
  • außen liegender Sonnenschutz

Sonstiges

  • Stellplätze im Hof oder in der Tiefgarage (à € 100,00 zzgl. gesetzl. MwSt.), E-Ladesäulen sind geplant
  • 15 öffentliche E-Ladesäulen (22 kW Type 2) befindensich auf der gegenüber liegenden Straßenseite
  • Archivflächen (à € 8,00/m² zzgl. gesetzl. MwSt.)
  • Gewerbesteuerhebesatz von 490 %
  • die dargestellten Impressionen zeigen Ausbaubeispiele aus dem Gebäude
  • ein Energiebedarfsausweis liegt vor, der Endenergiebedarf für Wärme beträgt 144,9 kWh/(m²*a) und für Strom 47,4 kWh/(m²*a), wesentlicher Energieträger für die Heizung des Gebäudes ist Fernwärme
Merkliste

Gerne senden wir Ihnen Exposés Ihrer Favoriten per Email zu.

Sie haben noch keine Favoriten gespeichert.

Vielen Dank
Wir werden uns so schnell
wie möglich mit Ihnen
in Verbindung setzen.
Objekt: 8676
Exposé anfordern

* Pflichtfelder bitte vor Absenden ausfüllen.