Breitwieser Roth Breitwieser Roth

Objekt: 11251

Repräsentative Büros in chicem Neubau

Nettokaltmiete / m2 ab 19,00 €
Nebenkosten / m2 3 €
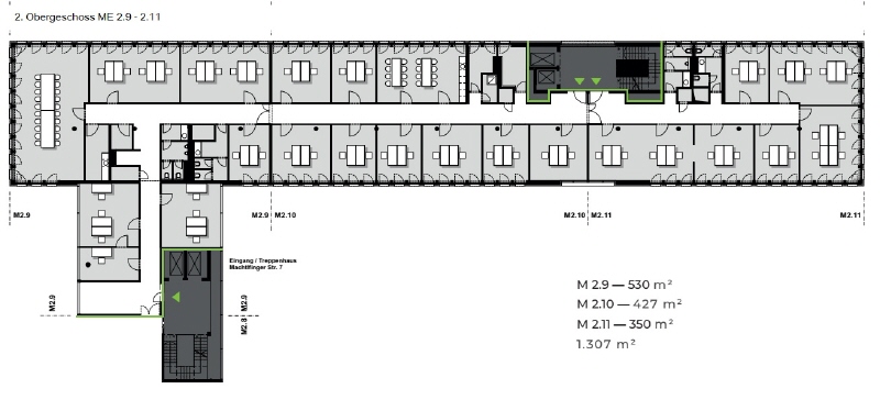
Fläche 1.307 m²
Teilbar ab 313 m²
81379 München Thalkirchen / Obersendling / Forstenried
Bezug nach Vereinbarung
Provision provisionsfrei für den Mieter

Beschreibung

Hochwertiger, repräsentativer Büroneubau, welcher in 3 Längsbauten mit Natursteinfassade gegliedert ist. Die 3 Bauabschnitte wurden durch Glasbrücken miteinander verbunden. In den Innenhöfen eröffnen sich Grünflächen, die sich für entspannte Mittagspausen anbieten. Die Büros sind flexibel gestaltbar und auf dem neuesten Stand moderner Büroausstattung.

Lage

  • zwischen Kistlerhofstraße und Boschetsrieder Straße
  • U-Bahn Machtlfinger Straße
  • das neue Zentrum Südwink mit verschiedenen Einkaufsmöglichkeiten befindet sich unweit entfernt
  • ein paar Restaurants erreicht man in ca. 10 Minuten zu Fuß

Ausstattung

  • neuer Bodenbelag nach Mieterwunsch, vorgesehen ist ein Teppichboden
  • arbeitsplatzgerechte Beleuchtung in den Büros, Spots in den Fluren
  • CAT-6/CAT-7 Verkabelung im Hohlraumboden (muss eventuell auf Ihren Bedarf angepasst werden)
  • Glasfaseranschluss in jeder Mieteinheit vorhanden
  • 2 Personenlifts pro Eingang
  • Raumhöhe von ca. 3,63 m (Abhangdecke 3,18 m) im EG, 3,12 m (Abhangdecke 2,83) in den oberen Geschossen
  • außen liegender, elektrischer Sonnenschutz
  • innen liegender, mechanischer Blendschutz
  • Kühldecken vorhanden oder nachrüstbar
  • Zugangskontrollsystem

Sonstiges

  • es können Tiefgaragen- und Außenstellplätze (à € 100,00 zzgl. € 10,00 Nebenkosten/Stellplatz und gesetzl. MwSt.) angemietet werden
  • Tiefgaragenstellplätze mit E-Ladestation (à € 140,00 zzgl. € 10,00 Nebenkosten/Stellplatz und gesetzl. MwSt.), 4 öffentliche E-Ladesäulen (22 kW Type 2) vor dem Gebäude
  • Verwaltungskostenpauschale: 4% der Nettomiete (separat zur Nebenkostenvorauszahlung)
  • Lagerflächen ab 32 m² stehen zur Anmietung zur Verfügung (à € ab 9,50 / m² zzgl. € 2,50 Nebenkosten/m² und gesetzl. MwSt.)
  • DGNB Gold + WiredScore Gold Zertifizierung
  • ein Energieverbrauchsausweis (gültig bis 24. Februar 2030) liegt vor, der Verbrauchskennwert für Wärme beträgt 59,7 kWh/(m²*a) und für Strom 71,6 kWh/(m²*a), wesentlicher Energieträger für die Heizung des Gebäudes ist Fernwärme
Merkliste

Gerne senden wir Ihnen Exposés Ihrer Favoriten per Email zu.

Sie haben noch keine Favoriten gespeichert.

Vielen Dank
Wir werden uns so schnell
wie möglich mit Ihnen
in Verbindung setzen.
Objekt: 11251
Exposé anfordern

* Pflichtfelder bitte vor Absenden ausfüllen.