Breitwieser Roth Breitwieser Roth

Objekt: 4763

Rarität in München … Historische Hallen und Lofts auf grünem Areal

Nettokaltmiete / m2 auf Anfrage €
Nebenkosten / m2
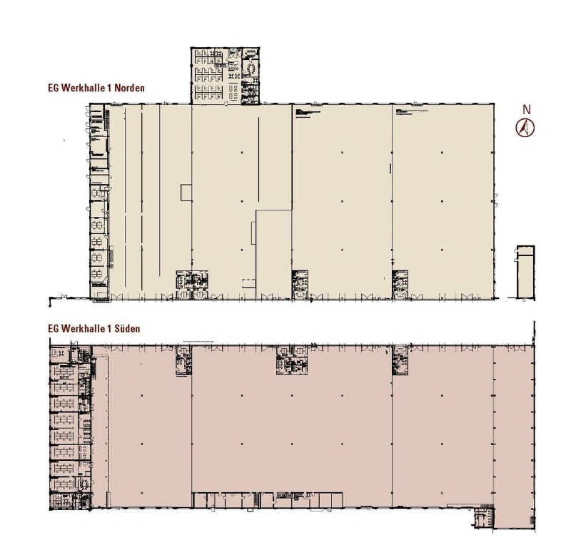
Fläche 24.750 m²
Teilbar ab 600 m²
81249 München Aubing / Lochhausen / Langwied
Bezug voraussichtlich ab 2030 verfügbar
Provision provisionsfrei für den Mieter

Beschreibung

Bis vor ein paar Jahren noch als Ausbesserungswerk der Deutschen Bahn genutzt, entstand auf einem riesigen Gelände eine neuer Ort für Kreative, Ausstellungen, leichte Produktionsstätten, Sport, Forschung oder Events …
Die historischen, denkmalgeschützen Backsteingebäude mit zum Teil 23.000 m² Grundfläche wurden nach und nach und je nach Bedürfnis der neuen Nutzer saniert und um einige, architektonisch anspruchsvolle Neubauten ergänzt. Der Naturschutz ist ein großer Bestandteil des Gesamtkonzepts. So wurden Biotope mit ökologisch wertvollem Magerrasen geschaffen, um den Lebensraum bedrohter Tierarten zu schützen. Ein einzigartiges Areal mit dem Charme der Jahrhundertwende für das Business von morgen!
Die knapp 23.000 qm umfassenden, zusammenhängenden Hallen bieten einen unglaublichen Spielraum für Ideen: die Nutzung ist in diesem Gebäudeteil komplett flexibel. Sowohl atemberaubende Showrooms, Werkstattflächen oder auch eine klassische Büronutzung mit einer Zwischenebene ist denkbar.

Lage

  • zwischen A 99, A 96 und Bodenseestraße
  • S-Bahn Neuaubing oder Bus
  • ca. 10 Gehminuten bis zur Bodenseestraße mit einigen Geschäften für den täglichen Bedarf
  • ein paar Restaurants und Snackbars erreicht man ebenfalls in ca. 10 Minuten zu Fuß, auf dem Gelände ist ein Restaurant geplant

Ausstattung

  • Die Ausstattung richtet sich ganz nach der Art der Nutzung und wird mit dem zukünftigen Mieter abgestimmt. Der Mietpreis richtet sich dann nach Art der Nutzung und dem Ausbauumfang.

Sonstiges

  • ausreichend Stellplätze stehen auf dem Gelände zur Verfügung (à € 55,00 - 85,00 zzgl. gesetzl. MwSt.)
  • öffentliche E-Ladestationen 2 x 22 kw) befinden sich auf dem Gelände
  • Gewerbesteuerhebesatz 490 %
  • Pflichtangaben zum Energieausweis nach §16a EnEV entfallen wegen des Denkmal- bzw. Ensembleschutzes
Merkliste

Gerne senden wir Ihnen Exposés Ihrer Favoriten per Email zu.

Sie haben noch keine Favoriten gespeichert.

Vielen Dank
Wir werden uns so schnell
wie möglich mit Ihnen
in Verbindung setzen.
Objekt: 4763
Exposé anfordern

* Pflichtfelder bitte vor Absenden ausfüllen.