Breitwieser Roth Breitwieser Roth

Objekt: 12235

Rarität in München … Historische Hallen und Lofts auf grünem Areal

Nettokaltmiete / m2 ab 12,50 €
Nebenkosten / m2 2 €
Fläche 1.221 m²
Teilbar ab 600 m²
81249 München Aubing / Lochhausen / Langwied
Bezug ab März/April 2027
Provision provisionsfrei für den Mieter

Beschreibung

Bis vor ein paar Jahren noch als Ausbesserungswerk der Deutschen Bahn genutzt, entstand auf einem riesigen Gelände eine neuer Ort für Kreative, Ausstellungen, leichte Produktionsstätten, Sport, Forschung oder Events …
Die historischen, denkmalgeschützen Backsteingebäude mit zum Teil 22.000 m² Grundfläche werden nach und nach und je nach Bedürfnis der neuen Nutzer saniert und um einige, architektonisch anspruchsvolle Neubauten ergänzt. Der Naturschutz ist ein großer Bestandteil des Gesamtkonzepts. So wurden Biotope mit ökologisch wertvollem Magerrasen geschaffen, um den Lebensraum bedrohter Tierarten zu schützen.
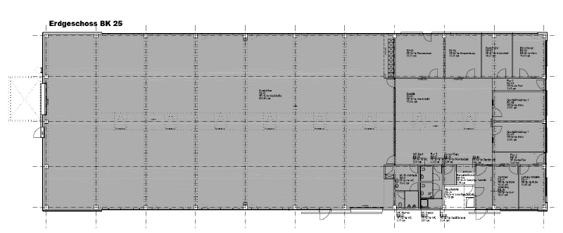
Die 2016 fertig gestellte funktionale Halle mit angrenzendem Bürobereich ist komplett ebenerdig und eignet sich für vielfältige Nutzungen aus den Bereichen Forschung & Entwicklung sowie leichte Produktion. Die Andienung erfolgt über zwei ebenerdige Hallentore, lichte Breite ca. 4,00 m x 4,00 m.

Lage

  • zwischen A 99, A 96 und Bodenseestraße
  • S-Bahn Neuaubing oder Bus
  • ca. 10 Gehminuten bis zur Bodenseestraße mit einigen Geschäften für den täglichen Bedarf
  • ein paar Restaurants und Snackbars erreicht man ebenfalls in ca. 10 Minuten zu Fuß, auf dem Gelände ist ein Restaurant geplant

Ausstattung

  • Glasfaseranschluss M-Net
  • Hausanschlussleistung: 160 kVA
  • Verkehrslast von 30,00 KN/m²
  • Raumhöhe Halle: ca. 5,10 m bis 6,25 m
  • Raumhöhe Bürocubes: 2,60 m
  • Fußbodenheizung in der Halle
  • unterstützende Kühlung mittels Betonkernaktivierung im Bürobereich

Sonstiges

  • 17 Stellplätze stehen auf dem Gelände zur Verfügung (à € 55,00 zzgl. gesetzl. MwSt.) )
  • öffentliche E-Ladestationen 2 x 22 kw) befinden sich auf dem Gelände
  • Gewerbesteuerhebesatz 490 %
  • Pflichtangaben zum Energieausweis nach §16a EnEV entfallen wegen des Denkmal- bzw. Ensembleschutzes
Merkliste

Gerne senden wir Ihnen Exposés Ihrer Favoriten per Email zu.

Sie haben noch keine Favoriten gespeichert.

Vielen Dank
Wir werden uns so schnell
wie möglich mit Ihnen
in Verbindung setzen.
Objekt: 12235
Exposé anfordern

* Pflichtfelder bitte vor Absenden ausfüllen.