Breitwieser Roth Breitwieser Roth

Objekt: 12107

Perfekte Arbeitsatmosphäre in gefragter Lage

Nettokaltmiete / m2 20,00 €
Nebenkosten / m2 3,50 €
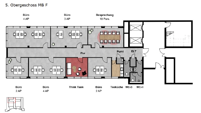
Fläche 433 m²
Teilbar ab 376 m²
80339 München Schwanthalerhöhe
Bezug ab August 2026
Provision provisionsfrei für den Mieter

Beschreibung

Zurückversetzt von der Straße liegt der imposante Neubau mit seiner verspiegelten, geschwungenen Fassade. Durch großzügige Duchgänge gelangt man in die 2 ruhigen Innenhöfe, die angenehm bepflanzt sind. Über die repräsentativ und modern gestalteten Eingangsbereiche erreicht man die flexiblen Büros, die nach Absprache mit dem neuen Mieter ausgebaut werden.

Lage

  • zwischen Landsberger Straße, Heimeranplatz und Lautensackstraße
  • U- und S-Bahn Heimeranplatz
  • ca. 5 Gehminuten bis zur Elsenheimerstraße mit einem vielfältigen Angebot an Geschäften und einem sehr großen Supermarkt
  • ein paar Restaurants und Cafés befinden sich im fußläufigen Umfeld

Ausstattung

  • Bodenbelag in Absprache mit dem neuen Mieter, vorgesehen ist ein Teppichboden
  • Beleuchtung nach Absprache
  • Hohlraumböden für die IT-Verkabelung
  • Personenlifts in jedem Eingangsbereich
  • lichte Raumhöhe von ca. 2.95 m (EG mit 3,20 m)
  • außen liegender elektronischer Sonnenschutz
  • teilweise gekühlte Flächen bzw. nachrüstbar

Sonstiges

  • Tiefgaragenstellplätze (à € 100,00 zzgl. gesetzl. MwSt.) und evtl. Außenstellplätze (à € 60,00 zzgl. gesetzl. MwSt.) können angemietet werden
  • insgesamt 3 Tiefgaragen-Stellplätze mit E-Ladestation im 1.UG (à € 200,00 zzgl. gesetzl. MwSt.)
  • 4 öffentliche E-Ladesäulen (22kW Type 2) befinden sich auf der gegenüberliegenden Straßenseite
  • ausreichend Lagerflächen stehen zur Verfügung (à € 8,00 /m² zzgl. gesetzl. MwSt.
  • Quelle der Fotos: @ Deka Immobilien
  • Zertifizierung: BREEAM In-Use (good)
  • Gewerbesteuerhebesatz 490 %
  • ein Energieverbrauchsausweis (gültig bis 03. Dezember 2029) liegt vor, der Verbrauchskennwert für Wärme beträgt 103,70 kWh/(m²*a) und für Strom 85,80 kWh/(m²*a), wesentlicher Energieträger für die Heizung des Gebäudes ist Erdgas und Strom
Merkliste

Gerne senden wir Ihnen Exposés Ihrer Favoriten per Email zu.

Sie haben noch keine Favoriten gespeichert.

Vielen Dank
Wir werden uns so schnell
wie möglich mit Ihnen
in Verbindung setzen.
Objekt: 12107
Exposé anfordern

* Pflichtfelder bitte vor Absenden ausfüllen.