Breitwieser Roth Breitwieser Roth

Objekt: 7967

NINTY5… Beeindruckender Neubau im Münchner Norden

Nettokaltmiete / m2 16,90 €
Nebenkosten / m2 4 €
Fläche 785 m²
Teilbar ab 375 m²
80807 München Schwabing-Freimann
Bezug nach MV-Abschluss 4 Monate
Provision provisionsfrei für den Mieter

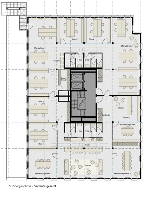
Beschreibung

Die modern ausgestatteten Büroräume befinden sich in einem hochwertigen Neubau im Münchener Norden. Das Objekt umfasst fünf Vollgeschosse und besticht durch seinen repräsentativen Eingangsbereich und die flexible Raumaufteilung. Ein besonderes Highlight sind die exklusiv genutzten Terrassen im 1. und 2. OG und die allgemeine Dachterrasse im 6. OG, die allen Mietern zur Verfügung steht.

Lage

  • zwischen Ingolstädter Straße und A9
  • U-Bahn Frankfurter Ring und Bus
  • ein paar Geschäfte liegen in der Umgebung
  • eine kleine Auswahl an Snackbars und Restaurants befinden sich in der Nähe
  • verkehrsgünstige Geschäftsgegend

Ausstattung

  • Teppich oder Designbelag Amtico in Holzoptik
  • hochwertige Türen
  • große, fast bodentiefe Fenster
  • moderne Ganzglaselemente
  • Beleuchtung mittels Stehleuchten
  • voll ausgestattete Teeküchen
  • moderne, getrennte WCs
  • Hohlraumboden für eine IT-Verkabelung
  • Glasfaseranschluss
  • 2 Personenlifte
  • Raumhöhe ca. 3,0 m
  • elektrischer, außen liegender Sonnenschutz
  • Klimatisierung über Bauteilkühlung
  • mechanische Be- und Entlüftung

Sonstiges

  • Stellplätze in der hauseigenen Tiefgarage (à € 100,00 zzgl. gesetzl. MwSt.) und Außenstellplätze (à € 80,00 zzgl. ges. MwSt.) können angemietet werden
  • Tiefgaragenplätze teilweise mit E-Ladesäulen möglich
  • Archivflächen auf Anfrage
  • Flächenberechnung nach BGF
  • Firmenlogo an der Fassade möglich
  • ein Energiebedarfsausweis liegt vor, der Endenergiebedarf für Wärme beträgt 78,4 kWh/(m²*a) und für Strom 33,3 kWh/(m²*a), wesentlicher Energieträger für die Heizung des Gebäudes ist Fernwärme
Merkliste

Gerne senden wir Ihnen Exposés Ihrer Favoriten per Email zu.

Sie haben noch keine Favoriten gespeichert.

Vielen Dank
Wir werden uns so schnell
wie möglich mit Ihnen
in Verbindung setzen.
Objekt: 7967
Exposé anfordern

* Pflichtfelder bitte vor Absenden ausfüllen.