Breitwieser Roth Breitwieser Roth

Objekt: 12200

Neubau … Büro in stylischem Umfeld

Nettokaltmiete / m2 34,00 €
Nebenkosten / m2 5,50 €
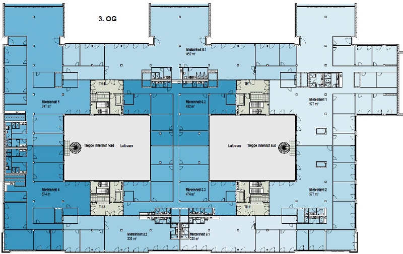
Fläche 1.464 m²
Teilbar ab 363 m²
81541 München Ramersdorf / Perlach
Bezug nach Vereinbarung
Provision provisionsfrei für den Mieter

Beschreibung

Dies ist kein Standort für Mieter, die ein 08/15-Büro suchen. Vor allem Unternehmen, die sich ein kreatives Umfeld wünschen, sind hier genau richtig. Der werksgeländetypische Gebäudemix macht den Reiz dieses Standorts aus.
Das Gelände ‚Neue Balan‘ hat eine lange Geschichte. Zuerst fand die Familie Kustermann dort ihren Sitz für Produktionen, später ließ sich hier Infinion nieder, bevor das Gelände vor einigen Jahren völlig neu entwickelt, die Bestandsbauten saniert wurden und der Standort durch Neubauten ergänzt wurde. Nicht gewöhnlich ist vor allem die Struktur der einzelnen Häuser: vom zweistöckigen Flachbau, über Neubauten, bis zum Hochhaus mit Blick über München findet hier jeder ein passendes Büro.
Begrünte Dachterrassen mit Alpenblick und Sichtbeton sorgen für ein besonderes, loftartiges Ambiente. Auch beim Ausbau sind die Möglichkeiten nahezu unbegrenzt. Vom Open-Space-Ausbau mit Parkett und viel Glas bis zum stylischen Büro mit unterschiedlichen Bereichen lässt sich hier alles realisieren.

Lage

  • zwischen Ostbahnhof, Mittlerer Ring und Rosenheimer Straße
  • U-Bahn Karl-Preis-Platz oder S-Bahn Sankt-Martin-Straße, Bushaltestelle vor der Tür
  • im Umkreis befinden sich ein paar kleinere Läden und Geschäfte, auf dem Gelände ist ein Supermarkt und ein Fitnessstudio untergebracht
  • ein paar Restaurants erreicht man zu Fuß, auf dem Gelände gibt es ein Deli und ein Café

Ausstattung

  • Bodenbelag nach Mieterwunsch
  • Beleuchtung mieterseits
  • Hohlraumboden für die IT-Verkabelung
  • Personenaufzüge in allen Eingangsbereichen
  • Raumhöhe im Regelgeschoss ca. 3,10 m
  • Betonkernaktivierung und Deckensegel zum Heizen und Kühlen
  • außen liegender, elektrischer Sonnenschutz
  • Dachterrassen in den Dachgeschossen
  • Achsraster von ca 1,25 m

Sonstiges

  • es stehen Stellplätze (à € 130,00 € zzgl. gesetzl. MwSt.) und E-Stellplätze (à € 150,00 zzgl. gesetzl. MwSt.) in der Tiefgarage zur Anmietung zur Verfügung
  • Lagerflächen im Untergeschoss (à € 9,50/m² zzgl. gesetzl. MwSt.)
  • Gewerbesteuerhebesatz von 490 %
  • die dargestellten Impressionen zeigen Ausbaubeispiele aus dem Gebäude
  • LEED-Platinum-Zertifizierung
  • ein Energiebedarfsausweis (gültig bis 30. September 2034) liegt vor, der Endenergiebedarf für Wärme beträgt 22,3 kWh/(m²*a) und für Strom 32,2 kWh/(m²*a), wesentlicher Energieträger für die Heizung des Gebäudes ist Fernwärme und Strom-Mix
Merkliste

Gerne senden wir Ihnen Exposés Ihrer Favoriten per Email zu.

Sie haben noch keine Favoriten gespeichert.

Vielen Dank
Wir werden uns so schnell
wie möglich mit Ihnen
in Verbindung setzen.
Objekt: 12200
Exposé anfordern

* Pflichtfelder bitte vor Absenden ausfüllen.