Breitwieser Roth Breitwieser Roth

Objekt: 9703

Moderner Büro-Campus in historischem Ambiente

Nettokaltmiete / m2 19,00 €
Nebenkosten / m2 3,80 €
Fläche 566 m²
Teilbar ab 387 m²
81829 München Trudering / Riem
Bezug ab sofort bzw. nach Umbau
Provision provisionsfrei für den Mieter

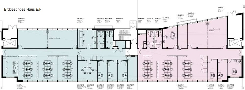
Beschreibung

Die historische Wappenhalle ist Wahrzeichen des Büro-Campus, der sich mit seiner modernen Architektur harmonisch mit ihr verbindet. Die einzelnen Bürogebäude, die sich um die Empfangshalle des ehemaligen Flughafens Riem gruppieren, bestechen durch effiziente Grundrisse und bieten moderne Arbeitswelten mit einer hervorragenden Infrastruktur. Die angebotene Mietfläche befindet sich im Erdgeschoss und verfügt zusätzlich zu den allgemeinen Zugängen über die Haupt- und Nebeneingänge über einen separaten und exklusiven Zugang zum Gebäude. Ein Umbau der Büroeinheit (z. B. Bodenbelag oder Raumaufteilung) ist auf Mieterwunsch möglich. Ein hauseigener Fitness-Bereich mit Umkleiden und Duschen steht allen Mietern zur Verfügung.

Lage

  • zwischen Joseph-Wild-Straße, Messesee und A94
  • U-Bahn Messestadt-West, S-Bahn München-Riem
  • ca. 10 Gehminuten bis zu den Riem-Arcaden am Willy-Brandt-Platz
  • ausreichend Restaurants und Tagescafés in den Arcaden, Café im Gebäude

Ausstattung

  • Teppichboden, anderer Bodenbelag nach Absprache möglich
  • abgehängte Perndelleuchten
  • Doppelboden für flexible IT- und Elektroverkabelung
  • Personenlift
  • schöne Raumhöhe
  • innen liegender Blendschutz
  • außen liegender, elektrischer Sonnenschutz
  • ökonomische, grundwassergespeiste Kühlung
  • teilweise Klimageräte

Sonstiges

  • Stellplätze in der Tiefgarage (à € 95,00 zzgl. gesetzl. MwSt.) anmietbar
  • 4 öffentliche E-Ladesäulen (22 kW Type 2) sind in 6 Gehminuten zu erreichen
  • Archivflächen (à € 9,50 zzgl. gesetzl. MwSt.) vorhanden
  • Gewerbesteuerhebesatz von 490 %
  • ein Energieverbrauchsausweis liegt vor, der Verbrauchskennwert für Wärme beträgt 76,6 kWh/(m²*a) und für Strom 19,4 kWh/(m²*a), wesentlicher Energieträger für die Heizung des Gebäudes ist Fernwärme
Merkliste

Gerne senden wir Ihnen Exposés Ihrer Favoriten per Email zu.

Sie haben noch keine Favoriten gespeichert.

Vielen Dank
Wir werden uns so schnell
wie möglich mit Ihnen
in Verbindung setzen.
Objekt: 9703
Exposé anfordern

* Pflichtfelder bitte vor Absenden ausfüllen.