Breitwieser Roth Breitwieser Roth

Objekt: 11918

Moderne Light-Industrial- oder Foschungsflächen … Optimal angebunden

Nettokaltmiete / m2 auf Anfrage €
Nebenkosten / m2
Fläche 1.448 m²
Teilbar ab 1.448 m²
80935 München Milbertshofen / Am Hart
Bezug nach Vereinbarung
Provision provisionsfrei für den Mieter

Beschreibung

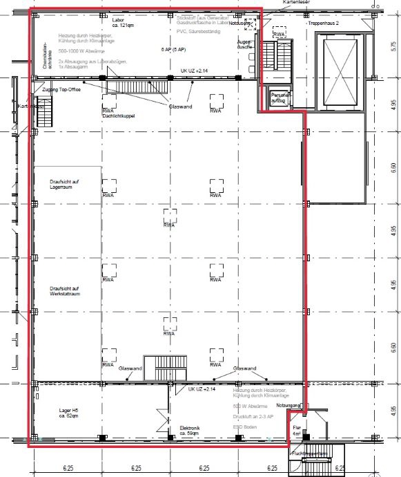
Auf einem knapp 10.000 m² großen Grundstück im Münchner Norden entstanden 2023 moderne Büro- und Hallenflächen. Das multifunktionale Gebäude mit Hallen von zum Teil 6,20 m lichter Höhe bietet vielfältige Nutzungsmöglichkeiten im Bereich Light Industrial, Produktion oder Forschung & Entwicklung. Die Hallen sind im EG mit Rolltoren und zum Teil mit Lastenlifts ausgestattet und verfügen über eine Taglast von 15 kN/m². Im Bürobereich in den Zwischengeschossen und im 1. OG lassen sich moderne Bürokonzepte darstellen.

Lage

  • zwischen Schleißheimer, Riesenfeld- und Lerchenauer Straße
  • U-Bahn Am Hart oder Bushaltestelle an der Schleißheimer Straße
  • fußläufig entfernt befindet sich ein Supermarkt und Bäckereien
  • Cafés und ein paar Restaurants erreicht man ebenfalls in ca. 10 Minuten zu Fuß

Ausstattung

  • Ausstattung und Ausbau im Bürobereich in Absprache mit dem Mieter
  • Traglasten: Halle 15 kN/m², Mezzanine 3,2 - 6 kN/m², Büro 3,2 kN/m²
  • lichte Höhen: 6,2 m (Halle 1 und 2), 4,3 m (Halle 3 und 4), 4,4 (Halle 5 und 6)
  • Andienung über einen Lastenlift in Halle 5 und 6 (Einbringungsöffnung 2,3 x 3,9 m, Traglast von 3.500 kg)
  • Personenlift zur Büroebene
  • Decken- ud Fächenheizstrahler
  • Stromanschlussleistung von ca. 300 kW in der Halle
  • Umluftkühlung in den Büros, Halle 1+2 sowie in einzelnen Räumen der Halle 5 (Labore)

Sonstiges

  • ingesamt können 12 Stellplätze in der Tiefgarage und 2 Außenstellplätze angemietet werden (Mietpreis auf Anfrage)
  • E-Ladesäulen befinden sich auf dem Gelände
  • Gewerbesteuerhebesatz 490 %
  • Energieausweis / Hinweis zur EnEV 2014: Zum Zeitpunkt der Erstellung und Veröffentlichung dieser Anzeige lag uns für die Immobilie kein Energieausweis vor, dessen Kennwerte nach § 16a der Energieeinsparverordnung ab dem 01. Mai 2014 in der Anzeige anzugeben wären. Hiervon unberührt bleibt die Verpflichtung des Vermieters / Verpächters bzw. Verkäufers der Immobilie, einen gültigen Energieausweis erstellen zu lassen und nach Maßgabe des § 16 Abs. 2 EnEV 2014 vorzulegen.
Merkliste

Gerne senden wir Ihnen Exposés Ihrer Favoriten per Email zu.

Sie haben noch keine Favoriten gespeichert.

Vielen Dank
Wir werden uns so schnell
wie möglich mit Ihnen
in Verbindung setzen.
Objekt: 11918
Exposé anfordern

* Pflichtfelder bitte vor Absenden ausfüllen.