Breitwieser Roth Breitwieser Roth

Objekt: 9453

Moderne Büros mit bester Infrastruktur

Nettokaltmiete / m2 ab 22,00 €
Nebenkosten / m2 3,90 €
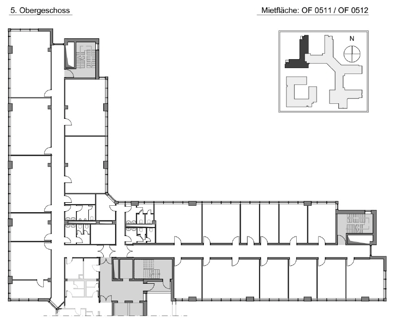
Fläche 1.125 m²
Teilbar ab 448 m²
81925 München Bogenhausen
Bezug nach Vereinbarung
Provision provisionsfrei für den Mieter

Beschreibung

Das markante Gebäude mit seiner strahlend weißen Fassade besteht aus drei Gebäuderiegeln, die sich um einen offenen, campusartigen Innenhof gruppieren. Die Eingangsbereiche sind modernisiert und sehr ansprechend gestaltet. Effiziente Grundrisse und niedrige Fensterbrüstungen sorgen für perfekte Lichtverhältnisse und gute Aussicht auf die nähere Umgebung. Die hochwertigen Büros können bei Anmietung individuell ausgestattet werden. Die Lage direkt am U-Bahnhof Arabellapark ermöglicht das Erreichen der Innenstadt in 10 Minuten.

Lage

  • im Stadtteil Arabellapark / Bogenhausen gelegen
  • U-Bahn oder Busbahnhof Arabellapark, Tram Effnerplatz
  • hier finden sich auf kürzesten Wegen verschiedene Geschäfte für den täglichen Bedarf, Arztpraxen, ein Wochenmarkt, diverse Banken und eine Postfiliale
  • sehr gute Auswahl an Restaurants und Cafés sowie ein namhaftes Hotel mit Kongresszentrum in der direkten Umgebung

Ausstattung

  • Teppichboden, optional auch andere Bodenbeläge möglich
  • arbeitsplatzgerechte Beleuchtung
  • Fensterbankkanäle für IT-Verkabelung
  • Personenlift
  • Raumhöhe von ca. 2,67 m
  • außen liegender Sonnenschutz
  • LED-Beleuchtung und Kühlung optional

Sonstiges

  • Stellplätze können in der hauseigenen Tiefgarage angemietet werden (à € 85,00 zzgl. gesetzl. MwSt.)
  • 8 öffentliche E-Ladesäulen (150 kW CCS) sind in 3 Gehminuten zu erreichen
  • Kellerräume auf Anfrage (à € 8,50 zzgl. gesetzl. MwSt.)
  • Gewerbesteuerhebesatz von 490 %
  • die dargestellten Impressionen zeigen Ausbaubeispiele aus dem Gebäude
  • Zertifizierung BREEAM excellent
  • ein Energieverbrauchsausweis (gültig bis 07. Juni 2030) liegt vor, der Verbrauchskennwert für Wärme beträgt 129 kWh/(m²*a) und für Strom 19 kWh/(m²*a), wesentlicher Energieträger für die Heizung des Gebäudes ist Fernwärme
Merkliste

Gerne senden wir Ihnen Exposés Ihrer Favoriten per Email zu.

Sie haben noch keine Favoriten gespeichert.

Vielen Dank
Wir werden uns so schnell
wie möglich mit Ihnen
in Verbindung setzen.
Objekt: 9453
Exposé anfordern

* Pflichtfelder bitte vor Absenden ausfüllen.