Breitwieser Roth Breitwieser Roth

Objekt: 12324

Moderne Architektur in einzigartiger Lage

Nettokaltmiete / m2 auf Anfrage €
Nebenkosten / m2
Fläche 1.410 m²
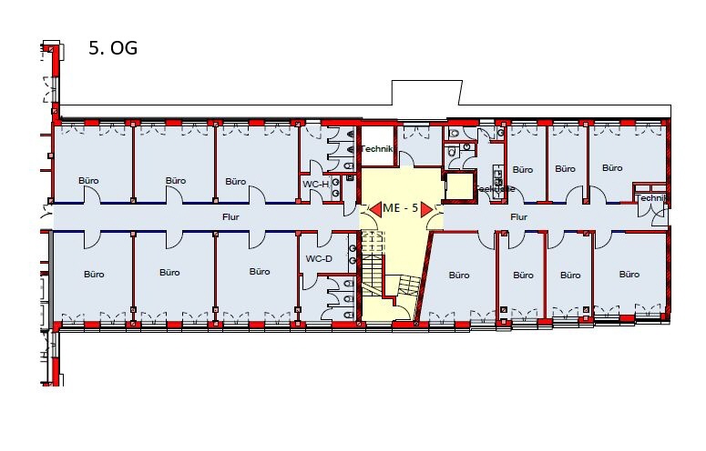
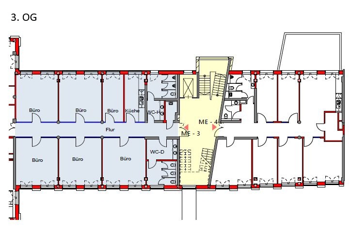
Teilbar ab 244 m²
80333 München Maxvorstadt
Bezug ab 4. Quartal 2027
Provision provisionsfrei für den Mieter

Beschreibung

Das Bürohaus in renommierter Lage wird bis Herbst 2027 umfassend und hochwertig revitalisiert. Das im Jahr 1993 errichtete Gebäude erhält eine zeitgemäße, anspruchsvolle Sanierung mit neuer Fassade und stilvollem Eingangsbereich, die moderne Arbeitswelten mit urbanem Komfort verbindet. Ein besonderes Highlight ist die großzügige Dachterrasse sowie zwei Balkone im 1. und 2. Obergeschoss, die attraktive Außenflächen mitten in der Innenstadt bieten. Die Revitalisierung schafft ein repräsentatives Bürogebäude in erstklassiger Lage – nachhaltig, elegant und zukunftsorientiert.

Lage

  • Premiumlage zwischen Odeons- und Karolinenplatz
  • U-Bahn Königs- oder Odeonsplatz
  • in wenigen Minuten erreicht man die Innenstadt mit allen Geschäften für den täglichen Bedarf
  • eine sehr gute Auswahl an Restaurants und Cafés sind fußläufig zu erreichen

Ausstattung

  • Bodenbelag nach Absprache
  • Doppelboden für die IT-Verkabelung
  • Personenlift im Haus
  • Raumhöhe von 2,86 m
  • große Terrasse
  • redundanter Glasfaser-Anschluss vorhanden

Sonstiges

  • insgesamt stehen 20 Tiefgaragenstellplätze (Preis auf Anfrage) zur Verfügung
  • öffentliche E-Ladesäule mit 22 kW ca. 2 Gehminuten entfernt
  • Archivflächen auf Anfrage
  • Gewerbesteuerhebesatz von 490 %
  • die dargestellten Impressionen zeigen Ausbaubeispiele aus dem Gebäude
  • ein Energieverbrauchsausweis liegt vor (gültig bis 30. Mai 2032), der Verbrauchskennwert für Wärme beträgt 81,3 kWh/(m²*a) und für Strom 93 kWh/(m²*a), wesentlicher Energieträger für die Heizung des Gebäudes ist Kraft-Wärme-Kopplung (fossil)
Merkliste

Gerne senden wir Ihnen Exposés Ihrer Favoriten per Email zu.

Sie haben noch keine Favoriten gespeichert.

Vielen Dank
Wir werden uns so schnell
wie möglich mit Ihnen
in Verbindung setzen.
Objekt: 12324
Exposé anfordern

* Pflichtfelder bitte vor Absenden ausfüllen.