Breitwieser Roth Breitwieser Roth

Objekt: 12085

Mit Pool vor der Tür und Dachterrasse … Büro in stylischem Umfeld

Nettokaltmiete / m2 24,50 €
Nebenkosten / m2 4 €
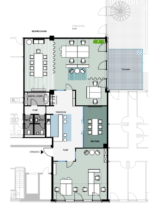
Fläche 262 m²
Teilbar ab 262 m²
81541 München Ramersdorf / Perlach
Bezug nach Vereinbarung
Provision provisionsfrei für den Mieter

Beschreibung

Dies ist kein Standort für Mieter, die ein 08/15-Büro suchen. Vor allem Unternehmen, die sich ein kreatives Umfeld wünschen, sind hier genau richtig. Der werksgeländetypische Gebäudemix macht den Reiz dieses Standorts aus.
Das Gelände ‚Neue Balan‘ hat eine lange Geschichte. Zuerst fand die Familie Kustermann dort ihren Sitz für Produktionen, später ließ sich hier Infinion nieder, bevor das Gelände vor ein paar Jahren völlig neu entwickelt, die Bestandsbauten saniert wurden und der Standort durch Neubauten ergänzt wurde. Nicht gewöhnlich ist vor allem die Struktur der einzelnen Häuser: vom zweistöckigen Flachbau, über Neubauten, bis zum Hochhaus mit Blick über München findet hier jeder ein passendes Büro. Der Neubau aus dem Jahr 2013 gliedert sich perfekt in den Campus ein. Im Gebäude befinden sich unter anderem auch ein Fitnessstudio und ein Supermarkt. Dachterrassen, offene Grundrisse und Sichtbeton sorgen für ein besonderes, loftartiges Ambiente.

Lage

  • zwischen Ostbahnhof, Mittlerer Ring und Rosenheimer Straße
  • U-Bahn Karl-Preis-Platz oder S-Bahn Sankt-Martin-Straße, Bushaltestelle vor der Tür
  • im Umkreis befinden sich ein paar kleinere Läden und Geschäfte, auf dem Gelände ist ein Supermarkt und ein Fitnessstudio untergebracht
  • ein paar Restaurants erreicht man zu Fuß, auf dem Gelände gibt es ein Deli und ein Café

Ausstattung

  • grauer Teppichboden
  • Beleuchtung vorhanden
  • Teeküche nach Absprache
  • Hohlraumboden mit IT-Verkabelung
  • Personenlifts
  • Raumhöhe von 3,00 m
  • Betonkernaktivierung und Deckensegel zum Heizen und Kühlen
  • außen liegender, elektrischer Sonnenschutz
  • teilweise Sichtbeton

Sonstiges

  • Stellplätze auf Anfrage
  • E-Ladesäulen auf dem Gelände und in der Tiefgarage
  • Lagerflächen auf Anfrage
  • Gewerbesteuerhebesatz: 490 %
  • die dargestellten Impressionen zeigen Ausbaubeispiele aus dem Gebäude
  • LEED-Gold-Zertifizierung
  • die Flächen können auch möbliert angemietet werden
  • ein Energiebedarfsausweis (gültig bis 08. Januar 2034) liegt vor, der Endenergiebedarf für Wärme beträgt 83,4 kWh/(m²*a) und für Strom 48,8 kWh/(m²*a), wesentlicher Energieträger für die Heizung des Gebäudes ist Fernwärme
Merkliste

Gerne senden wir Ihnen Exposés Ihrer Favoriten per Email zu.

Sie haben noch keine Favoriten gespeichert.

Vielen Dank
Wir werden uns so schnell
wie möglich mit Ihnen
in Verbindung setzen.
Objekt: 12085
Exposé anfordern

* Pflichtfelder bitte vor Absenden ausfüllen.