Breitwieser Roth Breitwieser Roth

Objekt: 12190

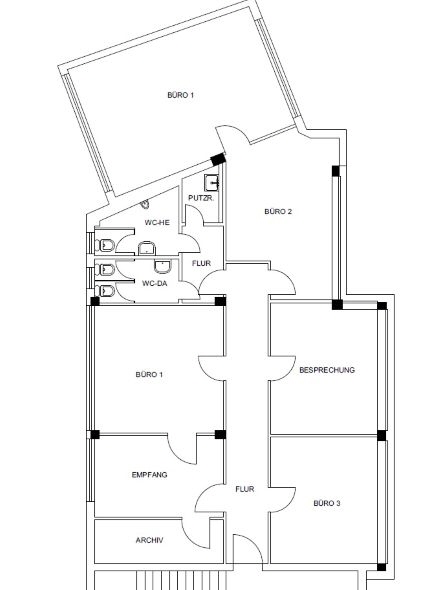
Markantes Büro- und Geschäftshaus mit ansprechenden Büroflächen

Nettokaltmiete / m2 13,00 €
Nebenkosten / m2 3,50 €
Fläche 170 m²
Teilbar ab 170 m²
81737 München Ramersdorf / Perlach
Bezug nach Vereinbarung
Provision provisionsfrei für den Mieter

Beschreibung

Das farblich markant gestaltete Geschäftsgebäude verfügt über Einzelhandelsflächen im Erdgeschoss und gepflegten Büroflächen in den Obergeschossen. Die vor kurzem neu gestaltete Büroeinheit ist in gut geschnittene Teambüros unterteilt und überzeugt durch das helle Ambiente. Auch eine Nutzung der Räume für Therapie oder Praxis ist denkbar. Ein attraktiver Standort im Münchner Osten mit guter Anbindung.

Lage

  • in unmittelbarer Nähe zum Innsbrucker Ring und der Salzburger Autobahn
  • U-Bahn Karl-Preis-Platz sowie Innsbrucker Ring, Buslinie Nr. 55 direkt vor dem Objekt
  • in der näheren Umgebung findet man einige Geschäfte für den täglichen Bedarf sowie eine Bäckerei und Apotheke
  • eine Auswahl an Restaurants und Cafés befindet sich in der Nähe

Ausstattung

  • neuwertiges Laminat
  • Deckenrasterleuchten
  • IT-Verkabelung vorhanden (muss evtl. auf Ihren Bedarf angepasst werden)
  • Glasfaseranschluss im Haus
  • Teeküchenanschluss
  • Personen- und Lastenlift
  • normale Raumhöhe
  • außen liegender Sonnenschutz

Sonstiges

  • Stellplätze im Hof (à € 30,00 zzgl. gesetzl. MwSt.) oder in der Tiefgarage (à € 60,00 zzgl. gesetzl. MwSt.)
  • 2 öffentliche E-Ladesäulen ca. 600 m entfernt
  • Archivflächen auf Anfrage
  • Gewerbesteuerhebesatz von 490 %
  • ein Energiebedarfsausweis liegt vor, der Endenergiebedarf für Wärme beträgt 233 kWh/(m²*a) und für Strom 20,3 kWh/(m²*a), wesentlicher Energieträger für die Heizung des Gebäudes ist Heizöl
Merkliste

Gerne senden wir Ihnen Exposés Ihrer Favoriten per Email zu.

Sie haben noch keine Favoriten gespeichert.

Vielen Dank
Wir werden uns so schnell
wie möglich mit Ihnen
in Verbindung setzen.
Objekt: 12190
Exposé anfordern

* Pflichtfelder bitte vor Absenden ausfüllen.