Breitwieser Roth Breitwieser Roth

Objekt: 11318

Schicke Praxis-/Therapieräume mit Kühlung nahe Münchner Freiheit

Nettokaltmiete / m2 ab 26,00 €
Nebenkosten / m2 4 €
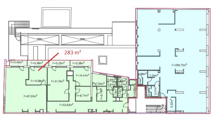
Fläche 283 m²
Teilbar ab 283 m²
80802 München Schwabing
Bezug nach Vereinbarung
Provision provisionsfrei für den Mieter

Beschreibung

Die moderne Mietfläche befindet sich in einem ansprechenden und repräsentativen Büro- und Geschäftshaus. Das Gebäudeensemble wurde im Jahr 2013 aufwendig saniert und fügt sich nahtlos in die Nachbarbebauung ein. Das Objekt zeichnet sich insbesondere durch den neu gestalteten Eingangsbereich sowie das ansprechende Treppenhaus aus. Bei der Einheit handelt es sich um eine vor wenigen Jahren hochwertig mit Glaselementen, Duschen, Kühlung und LED-Beleuchtung ausgebaute Mietfläche, geeignet als Praxis. Im Haus sind bereits folgende Fachbereiche vorhanden: Orthopädie, Chirotherapie sowie osteopathische Medizin und Zahnmedizin. Ein Fitnessstudio befindet sich bereits im Haus.

Lage

  • zwischen Siegestor, Münchner Freiheit und Englischem Garten
  • U-Bahn Giselastraße sowie Buslinie fast vor der Tür
  • nur wenige Gehminuten bis zur Münchner Freiheit mit vielen Einkaufsmöglichkeiten
  • zahlreiche Restaurants und Cafés befinden sich entlang der Leopoldstraße und in den umliegenden Seitenstraßen

Ausstattung

  • Echtholzparkett und Linoleum
  • moderne Deckenbeleuchtung
  • Teeküchenanschlüsse
  • IT-Verkabelung vorhanden (muss evtl. auf Ihren Bedarf angepasst werden)
  • Glasfaseranschluss im Haus gegeben
  • Personenlift
  • außen liegender Sonnenschutz
  • Unterflurkonvektoren
  • Kühlung vorhanden
  • Austritt auf Balkon zum Innenhof von fast jedem Raum

Sonstiges

  • Stellplätze in der Tiefgarage (à € 150,00 zzgl. gesetzl. MwSt.) anmietbar, Anzahl auf Anfrage
  • 4 öffentliche E-Ladesäulen ca. 150 m entfernt
  • keine Lagerfläche im Untergeschoss
  • Gewerbesteuerhebesatz von 490 %
  • ein Energiebedarfsausweis liegt vor, der Endenergiebedarf für Wärme beträgt 106,7 kWh/(m²*a) und für Strom 49,9 kWh/(m²*a), wesentlicher Energieträger für die Heizung des Gebäudes ist Öl.
Merkliste

Gerne senden wir Ihnen Exposés Ihrer Favoriten per Email zu.

Sie haben noch keine Favoriten gespeichert.

Vielen Dank
Wir werden uns so schnell
wie möglich mit Ihnen
in Verbindung setzen.
Objekt: 11318
Exposé anfordern

* Pflichtfelder bitte vor Absenden ausfüllen.