Breitwieser Roth Breitwieser Roth

Objekt: 7945

KUPA … Außergewöhnliche Lofts in denkmalgeschütztem Gebäude

Nettokaltmiete / m2 ab 24,50 €
Nebenkosten / m2 5 €
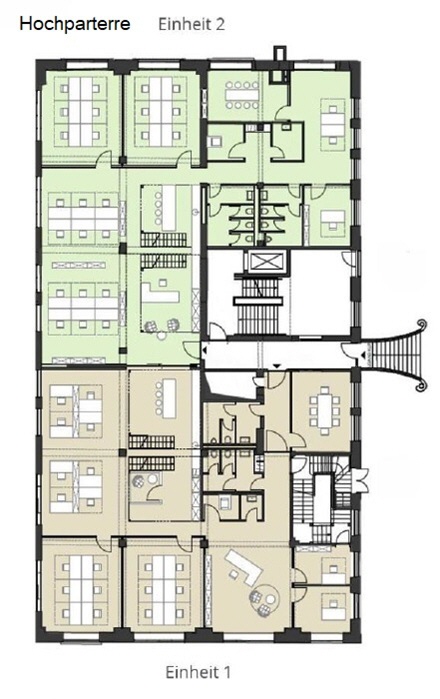
Fläche 2.299 m²
Teilbar ab 477 m²
81241 München Pasing / Obermenzing
Bezug nach Vereinbarung
Provision provisionsfrei für den Mieter

Beschreibung

In dem denkmalgeschützen, 1906 errichteten Altbau der Pasinger Kuvertfabrik wurde eine Komplett-Revitalisierung der einzigartigen Loft- und Galerieflächen vollzogen. Die historische Architektur, unter anderem mit einem Jugendstil-Treppenhaus und Original-Fliesen, wird behutsam saniert und mit einer neubaugleichen Innenausstattung versehen. Das Gebäude ist sowohl für einen Gesamtnutzer als auch für mehrere Mieter mit kleineren Einheiten geeignet. Das angegliederte Kesselhaus bietet Raum für Konferenz- und Meetingzonen oder individuelle Großraumbüros. Die tagesbelichteten Souterrainflächen erhalten Terrassen als Außenbereich, die Loftflächen im Hochparterre sowie im Dachgeschoss verfügen zusätzlich über eine Galerieebene. Eine besondere Location mit außergewöhnlicher Historie!

Lage

  • zwischen Josef-Felder-Straße, Pasinger Bahnhof und Am Knie
  • S-Bahn Pasinger Bahnhof
  • hervorragende Infrastruktur mit allen Geschäften für den täglichen Bedarf ist vorhanden
  • breites Angebot an Restaurants und Cafés in den Pasing Arcaden

Ausstattung

  • Parkett
  • Beleuchtung nach Absprache
  • neue IT-Verkabelung mieterseits
  • Personenlift
  • unterschiedliche Raumhöhen, teilweise bis unter das Dach
  • Kühlung mittels Kühlsegel bzw. Kühldecken
  • außen liegender Sonnenschutz

Sonstiges

  • 40 Tiefgaragenstellplätze (à € 80,00 zzgl. € 10,00 Nebenkosten und gesetzl. MwSt.) für alle Flächen stehen zur Verfügung
  • 2 öffentliche E-Ladesäulen (22 kW Type 2) sind in 7 Gehminuten zu erreichen
  • keine Lagerflächen
  • Gewerbesteuerhebesatz von 490 %
  • Pflichtangaben zum Energieausweis nach §16a EnEV entfallen wegen des Denkmal- bzw. Ensembleschutzes
Merkliste

Gerne senden wir Ihnen Exposés Ihrer Favoriten per Email zu.

Sie haben noch keine Favoriten gespeichert.

Vielen Dank
Wir werden uns so schnell
wie möglich mit Ihnen
in Verbindung setzen.
Objekt: 7945
Exposé anfordern

* Pflichtfelder bitte vor Absenden ausfüllen.