Breitwieser Roth Breitwieser Roth

Objekt: 12221

Komfortable Büros mit bester Infrastruktur

Nettokaltmiete / m2 12,90 €
Nebenkosten / m2 2,90 €
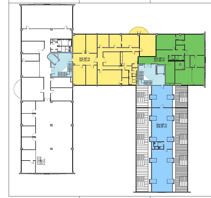
Fläche 222 m²
Teilbar ab 222 m²
82008 Unterhaching Umland Süd-Ost
Bezug ab März 2027
Provision provisionsfrei für den Mieter

Beschreibung

Das großzügige und mit viel Grün und Wasserflächen angelegte Areal ‚Erlenhofpark‘ liegt zentral in Unterhaching mit guter Anbindung an die A8. Es befindet sich ein 4-Sterne-Hotel mit Konferenzräumen und Catering, Bar, Restaurants und Biergarten auf dem Gelände. Die modernen Gebäude verfügen über verschiedene Büroflächen ab 100 m². Die Räumlichkeiten im 3. OG sind in Einzel- und Teambüros unterteilt. Die Ausstattung und die Raumaufteilung kann jedoch in Absprache mit dem neuen Mieter geändert werden.

Lage

  • südlich von München, entlang der A8
  • S-Bahn Taufkirchen
  • im Umfeld findet man eine Bäckerei, einen Bio-Supermarkt, eine Drogerie sowie weitere Geschäfte für den täglichen Bedarf und ein Fitnessstudio
  • gute Infrastruktur an Restaurants und Cafés in der Umgebung, ein Hotel mit Catering-Angebot befindet sich auf dem Gelände

Ausstattung

  • Teppichboden, neuer Bodenbelag nach Mieterwunsch
  • Deckenrasterleuchten
  • Brüstungskabelkanäle für die IT-Verkabelung
  • Personenlifts in allen Häusern
  • Duschen auf Anfrage realisierbar
  • Raumkühlung über Einzelkühlgeräte nach Absprache möglich

Sonstiges

  • Außen- und Tiefgaragenstellplätze (à € 55,00 - 60,00 zzgl. gesetzl. MwSt.) können angemietet werden
  • 2 öffentliche E-Ladesäulen (22 kW,Type 2) sind in 2 Gehminuten zu erreichen
  • Archivflächen im Untergeschoss (à € 8,00/m² zzgl. Nebenkosten € 1,80/m² und gesetzl. MwSt.)
  • Gewerbesteuerhebesatz von 295 %
  • die dargestellten Impressionen zeigen Ausbaubeispiele aus dem Gebäude
  • ein Energiebedarfsausweis (gültig bis 24. Mai 2034) liegt vor, der Endenergiebedarf für Wärme beträgt 66,5 kWh/(m²*a) und für Strom 20,9 kWh/(m²*a), wesentlicher Energieträger für die Heizung des Gebäudes ist Fernwärme
Merkliste

Gerne senden wir Ihnen Exposés Ihrer Favoriten per Email zu.

Sie haben noch keine Favoriten gespeichert.

Vielen Dank
Wir werden uns so schnell
wie möglich mit Ihnen
in Verbindung setzen.
Objekt: 12221
Exposé anfordern

* Pflichtfelder bitte vor Absenden ausfüllen.