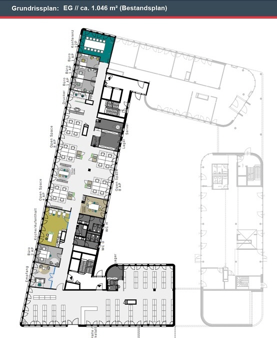
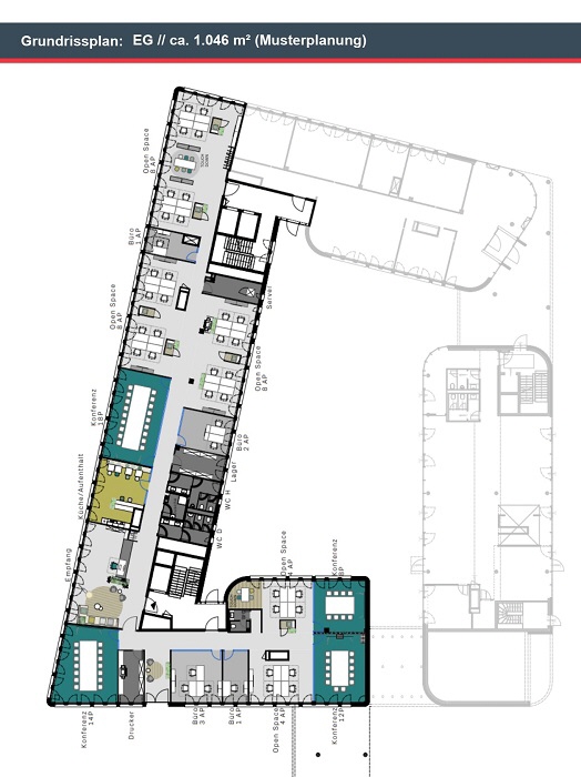
Beschreibung
Attraktiver, 2014 fertig gestellter Neubau im Münchner Norden – hier wurden die Anforderungen eines Green-Buildings mehr als erfüllt: ansprechende Fassade mit hoher Wärmedämmung, Sonnenkollektoren auf dem Dach, stilvolle Grünanlagen in den Innenhöfen und eine überzeugende Ökobilanz. Die in Holzoptik verkleidete Fassade wie auch die schön gestalteten Innenhöfe schaffen ein angenehmes Ambiente. Die Mieteinheit im Erdgeschoss verfügt über einen separaten Zugang mit einer Art Halle/Werkstatt und ist für eine Kombinutzung aus Büro und light industrial gut geeignet.
Lage
- zwischen Mittlerem Ring, Ungerer- und Leopoldstraße
- Tram-Station Parkstadt Schwabing sowie Busanbindung zur Münchner Freiheit direkt vor der Tür, ca. 10 Gehminuten bis zur U-Bahn Frankfurter Ring
- unweit entfernt befindet sich das Parkstadtcenter mit vielen Einkaufsmöglichkeiten für den täglichen Bedarf
- einige zum Teil schicke Restaurants und stylische Cafés befinden sich in der Nähe, für die Mittagspause bietet sich die Gastronomie im Nachbarhaus an
Ausstattung
- Teppichboden
- Pendelleuchten
- Hohlraumboden mit EDV-Verkabelung (vom Vormieter)
- Betonkernaktivierung
- Personenaufzüge
- Raumhöhe von ca. 2,80 m in den Büros, 2,60 m in den Fluren (abgehängte Decke)
- außen liegender, elektrisch bedienbarer Sonnenschutz
- akustisch wirksame Deckensegel (vom Vormieter)
Sonstiges
- Stellplätze in der Tiefgarage (à € 100,00 zzgl. gesetzl. MwSt.)
- 4 öffentliche E-Ladesäulen (22 kW Type 2) sind in 7 Gehminuten zu erreichen
- 12 m² - bis 75 m² Archivräume im Untergeschoss (€ 8,50/m² zzgl. gesetzl. MwSt.)
- Mietpreisstaffel: 1. Mietjahr € 19,00/m², 2. Mietjahr € 20,00/m², ab dem 3. Mietjahr € 21,00/m²
- die dargestellten Impressionen zeigen Ausbaubeispiele aus dem Gebäude
- LEED-Zertifizierung
- ein Energiebedarfsausweis (gültig bis 03. August 2026) liegt vor, der Endenergiebedarf für Wärme beträgt 85 kWh/(m²*a), wesentlicher Energieträger für die Heizung des Gebäudes ist Fernwärme