Breitwieser Roth Breitwieser Roth

Objekt: 11452

Klein und mit attraktivem Ausblick

Nettokaltmiete / m2 32,00 €
Nebenkosten / m2 4 €
Fläche 115 m²
Teilbar ab 115 m²
80331 München Altstadt
Bezug nach Vereinbarung
Provision provisionsfrei für den Mieter

Beschreibung

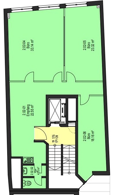
Kleines Geschäftshaus mit schlichter, aber moderner Fassade und großen Fenstern. Das Büro ist in 3 Räume und einen großzügigen Empfang unterteilt. Die großen Glasflächen sorgen für viel Licht und einen schönen Ausblick. Die Fläche kann den Wünschen des neuen Mieters angepasst werden.

Lage

  • zwischen Sendlinger Tor und Marienplatz
  • U- und S-Bahn Marienplatz
  • ca. 4 Gehminuten bis zur Fußgängerzone, den Viktualienmarkt erreicht man ebenfalls schnell zu Fuß
  • zahlreiche Restaurants und Cafés befinden sich in direkter Nähe, ein Coffeeshop ist im Haus

Ausstattung

  • grauer Laminatboden, neuer Bodenbelag in Abstimmung mit dem Mieter
  • Beleuchtung nach Absprache
  • Teeküchenanschlüsse
  • 1 WC
  • Kabelkanäle für die IT-Verkabelung
  • Personenlift im Haus
  • Raumhöhe von ca. 2,80 m
  • außen liegender Sonnenschutz

Sonstiges

  • 2 Stellplätze in der hauseigenen Tiefgarage (à € 150,00 zzgl. Nebenkosten à € 5,00 gesetzl. MwSt.)
  • E-Ladesäulen mit 22 kW in ca 5 Gehminuten entfernt
  • Archivflächen uf Anfrage
  • Gewerbesteuerhebesatz 490 %
  • Flächenberechnung nach gif
  • ein Energieverbrauchsausweis (gültig bis 25. Juli 2034) liegt vor, der Verbrauchskennwert für Wärme beträgt 68,6 kWh/(m²*a) und für Strom 28,0 kWh/(m²*a), wesentlicher Energieträger für die Heizung des Gebäudes ist Fernwärme
Merkliste

Gerne senden wir Ihnen Exposés Ihrer Favoriten per Email zu.

Sie haben noch keine Favoriten gespeichert.

Vielen Dank
Wir werden uns so schnell
wie möglich mit Ihnen
in Verbindung setzen.
Objekt: 11452
Exposé anfordern

* Pflichtfelder bitte vor Absenden ausfüllen.