Breitwieser Roth Breitwieser Roth

Objekt: 12088

Individuelle und moderne Büros … Für jeden Geschmack das Richtige

Nettokaltmiete / m2 14,50 €
Nebenkosten / m2
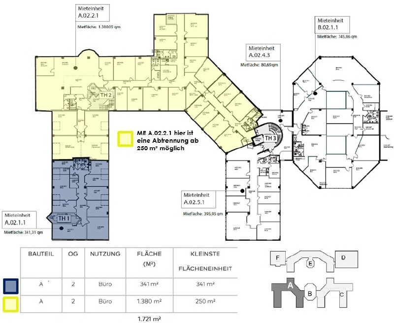
Fläche 265 m²
Teilbar ab 265 m²
82008 Unterhaching Umland Süd-Ost
Bezug nach Vereinbarung
Provision provisionsfrei für den Mieter

Beschreibung

Das großzügige Areal ‚SonnenHöfe‘ liegt zentral in Unterhaching mit guter Verkehrsanbindung an die A8. Auf dem hübsch angelegten und attraktiv begrünten Gelände befindet sich ein 4-Sterne-Hotel mit Konferenzräumen, Cateringmöglichkeit, Bar, Restaurant und Biergarten. Die Eingänge und Treppenhäuser der modernen Gebäude wurden neu gestaltet, so dass ein repräsentativer Gesamteindruck entsteht. Die individuellen und hellen Büroflächen werden den Bedürfnissen der neuen Mieter angepasst.

Lage

  • südlich von München, entlang der A8
  • S-Bahn Taufkirchen
  • im nahen Umfeld findet man in einem Gewerbegebiet Bäckereien, Supermärkte, eine Drogerie sowie weitere Geschäfte für den täglichen Bedarf und ein Fitnessstudio
  • gute Infrastruktur an Restaurants und Cafés in der Umgebung, ein Hotel mit Catering- und Mittagsangebot befindet sich auf dem Gelände

Ausstattung

  • neuer Bodenbelag in Absprache mit dem neuen Mieter
  • Deckenrasterleuchten oder Pendelleuchten
  • Brüstungskabelkanäle für die IT-Verkabelung
  • Glasfaseranschluss im Haus
  • Duschen auf Anfrage nachrüstbar
  • Personenlifts in allen Häusern
  • Kühlung auf Anfrage nachrüstbar
  • normale Raumhöhe, in einigen Flächen Dachschrägen

Sonstiges

  • Stellplätze in der Tiefgarage sowie Außenstellplätze (Mietpreis auf Anfrage)
  • E-Ladestellplätze verfügbar
  • ausreichend Archivflächen vorhanden (Mietpreis auf Anfrage)
  • Gewerbesteuerhebesatz von 295 %
  • die dargestellten Impressionen zeigen Ausbaubeispiele aus dem Gebäude
  • BREEAM-Sehr gut
  • ein Energieverbrauchsausweis (gültig bis 17. Februar 2031) liegt vor, der Verbrauchskennwert für Wärme beträgt 75 kWh/(m²*a) und für Strom 31 kWh/(m²*a), wesentlicher Energieträger für die Heizung des Gebäudes ist Nahwärme
Merkliste

Gerne senden wir Ihnen Exposés Ihrer Favoriten per Email zu.

Sie haben noch keine Favoriten gespeichert.

Vielen Dank
Wir werden uns so schnell
wie möglich mit Ihnen
in Verbindung setzen.
Objekt: 12088
Exposé anfordern

* Pflichtfelder bitte vor Absenden ausfüllen.