Breitwieser Roth Breitwieser Roth

Objekt: 11432

Individuelle Büroräume in der Altstadt

Nettokaltmiete / m2 55,00 €
Nebenkosten / m2 5 €
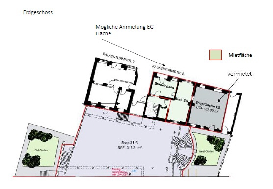
Fläche 612 m²
Teilbar ab 150 m²
80331 München Altstadt
Bezug ab 4. Quartal 2026
Provision 3,57 Monatsmiete(n) inkl. gesetzl. MwSt

Beschreibung

Der denkmalgeschützte Altbau aus dem Jahr 1865 bietet eine exklusive Arbeitsumgebung im Herzen der Stadt. Das Ensemble im Maximilianstil ist Teil der historischen „Altstadt München“. In dem Gebäude befand sich bis vor Kurzem ein Hotel, das nun in ein Bürogebäude umgestaltet werden soll. Die Räume werden nach den Wünschen des zukünftigen Mieters aus- und umgebaut.

Lage

  • zwischen Altstadtring und Opernplatz
  • U-Bahn Odeonsplatz oder S-Bahn Isartor oder Tram-Station in 1 Gehminute zu erreichen
  • Geschäfte des täglichen Bedarfs sowie Cafés oder Restaurants befinden sich im direkten Umfeld

Ausstattung

  • Parkettboden
  • Deckenspots
  • Kabelkanäle für die IT-Verkabelung
  • Personenlift vorhanden
  • normale Raumhöhe
  • innen liegender Blendschutz

Sonstiges

  • Stellplätze müssen in den öffentlichen Parkhäusern der Altstadt angefragt werden
  • E-Ladesäulen mit 22 kW in 1 Gehminute zu erreichen
  • keine Archivflächen vorhanden
  • Verwaltungskosten: 4,0 % der Nettokaltmiete pro Jahr
  • Gewerbesteuerhebesatz 490%
  • Pflichtangaben zum Energieausweis nach §16a EnEV entfallen wegen des Denkmal- bzw. Ensembleschutzes
Merkliste

Gerne senden wir Ihnen Exposés Ihrer Favoriten per Email zu.

Sie haben noch keine Favoriten gespeichert.

Vielen Dank
Wir werden uns so schnell
wie möglich mit Ihnen
in Verbindung setzen.
Objekt: 11432
Exposé anfordern

* Pflichtfelder bitte vor Absenden ausfüllen.