Breitwieser Roth Breitwieser Roth

Objekt: 10966

Hoch hinaus … Excellentes Büro direkt an der Stammstrecke

Nettokaltmiete / m2 ab 32,00 €
Nebenkosten / m2 4,50 €
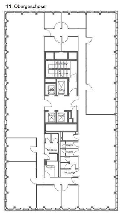
Fläche 671 m²
Teilbar ab 641 m²
80639 München Neuhausen / Nymphenburg
Bezug nach Vereinbarung
Provision provisionsfrei für den Mieter

Beschreibung

Das 2019 fertig gestellte Bürohaus Kap West ist ein echtes Highlight, allein schon durch seine zwei eigenständigen Baukörper, die jeweils um einen aufgesetzten Turm erweitert wurden und spannende Aussichten bieten. Der markante Zugang am Fuß der Friedenheimer Brücke mit großzügigem Vorplatz bietet ein repräsentatives Entree. Die sehr ansprechend gestaltete Büroeinheit im Nordturm verfügt über eine eher offene raumaufteilungm, die den Wünschen des kommenden Mieters noch angepasst werden könnte. Begrünte Innenhöfe mit Sitzgelegenheiten unter Bäumen stehen zur gemeinschaftlichen Nutzung zur Verfügung.

Lage

  • zwischen Landsberger Straße und Arnulfstraße
  • Stammstrecke S-Bahn-Haltestelle "Hirschgarten" 2 Gehminuten entfernt
  • vielfältige Einkaufs- und Essensmöglichkeiten für die Mittagspause bietet das gegenüber liegende "Forum am Hirschgarten" sowie verschiedene kleine Restaurants und Bistros in den Nachbarstraßen von Neuhausen
  • im Objekt selbst befindet sich ein Fitnessstudio mit Wellness-Angebot und Schwimmbad

Ausstattung

  • Teppichboden
  • LED-Beleuchtung/Stehleuchten
  • Hohlraumboden für mieterseitige IT-Verkabelung
  • Glasfaseranschluss (Provider M-Net)
  • mehrere Personenaufzüge
  • 2 Duschen (11. Etage)
  • durchgängige Deckenhöhen von 2,80 m, sowohl in der Flur- als auch in der Mittelzone
  • Heiz- und Kühldecke
  • Zugangskontrollsystem an den Haupteingängen und in der Tiefgarage
  • außen liegender, elektrischer Sonnenschutz
  • Barrierefrei (4 Aufzüge pro Turm)

Sonstiges

  • gesamt ca. 6 TG-Stellplätze in der Tiefgarage (à € 120,00 zzgl. Nebenkosten von € 15,00 pro Stück zzgl. gesetzl. MwSt.) anmietbar
  • Ladestation für Elektrofahrzeuge möglich
  • Gewerbesteuerhebesatz 490%
  • die dargestellten Impressionen zeigen Ausbaubeispiele aus dem Gebäude
  • ein Energiebedarfsausweis (gültig bis 13. Juli 2030) liegt vor, der Endenergiebedarf für Wärme beträgt 88,1 kWh/(m²*a) , wesentlicher Energieträger für die Heizung des Gebäudes ist Wärmepumpe/Fernwärme
Merkliste

Gerne senden wir Ihnen Exposés Ihrer Favoriten per Email zu.

Sie haben noch keine Favoriten gespeichert.

Vielen Dank
Wir werden uns so schnell
wie möglich mit Ihnen
in Verbindung setzen.
Objekt: 10966
Exposé anfordern

* Pflichtfelder bitte vor Absenden ausfüllen.