Breitwieser Roth Breitwieser Roth

Objekt: 10838

Hervorragendes Preis-Leistungs-Verhältnis

Nettokaltmiete / m2 8,90 €
Nebenkosten / m2 2,65 €
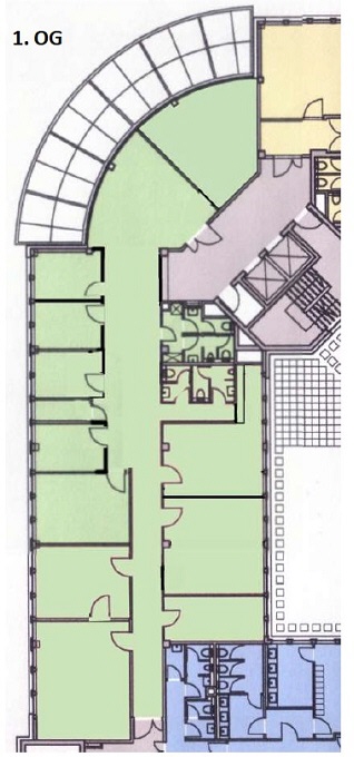
Fläche 385 m²
Teilbar ab 385 m²
85774 Unterföhring Umland Nord-Ost
Bezug nach Vereinbarung
Provision provisionsfrei für den Mieter

Beschreibung

Diese Bürofläche im 1. OG bietet nicht nur eine großzügige Arbeitsumgebung, sondern auch eine unschlagbare Anbindung an die Autobahnen A9 und A99. Ihre Mitarbeiter und Geschäftspartner erreichen Ihr Unternehmen somit problemlos und schnell. Die flexible Raumaufteilung ermöglicht es Ihnen, die Büros nach Ihren individuellen Anforderungen zu gestalten. Ob Großraumbüro für kollaboratives Arbeiten oder Einzelbüros für vertrauliche Gespräche – hier können Sie Ihre Arbeitsumgebung ganz nach Ihrem Bedarf anpassen. Hervorzuheben ist vor allem der niedrige Gewerbesteuerhebesatz von 330 %.

Lage

  • zwischen Münchner Straße, Cosimastraße und Föhringer Ring
  • Bushaltestelle in fußläufiger Nähe. Der Bus verkehrt alle 10 Minuten. In 12 Minuten Fahrtzeit, erreichen Sie die S-Bahnhaltestelle Johanneskirchen
  • in direkter Nachbarschaft gibt es ein Einkaufszentrum mit Lebensmittelgeschäften sowie mehrere, weitere Geschäfte und ein Hotel
  • Restaurants findet man im Ortszentrum

Ausstattung

  • Bodenbelag nach Mieterwunsch
  • Beleuchtung teilweise vorhanden
  • Hohlraumboden für die IT-Verkabelung (muss eventuell auf Ihren Bedarf angepasst werden)
  • Glasfaseranschluss liegt im Gebäude
  • Personenlift
  • Einbauküche
  • angenehme Raumhöhe
  • außen liegender elektrischer Sonnenschutz
  • Klimatisierung kann auf Wunsch nachgerüstet werden

Sonstiges

  • Stellplätze im Innenhof und Tiefgarage (à € 65,00 - 75,00 zzgl. gesetzl. MwSt.)
  • in 2 Gehminuten erreichen Sie eine öffentliche E-Ladesäule
  • Archivflächen (à € 7,00 m² zzgl. gesetzl. MwSt.)
  • die dargestellten Impressionen zeigen Ausbaubeispiele aus dem Gebäude
  • keine Vermietung an mehrwertsteuerbefreite Unternehmen
  • ein Energiebedarfsausweis (gültig bis 26. März 2028) liegt vor, der Endenergiebedarf für Wärme beträgt 97,9 kWh/(m²*a) und für Strom 35,8 kWh/(m²*a), wesentlicher Energieträger für die Heizung des Gebäudes ist Fernwärme
Merkliste

Gerne senden wir Ihnen Exposés Ihrer Favoriten per Email zu.

Sie haben noch keine Favoriten gespeichert.

Vielen Dank
Wir werden uns so schnell
wie möglich mit Ihnen
in Verbindung setzen.
Objekt: 10838
Exposé anfordern

* Pflichtfelder bitte vor Absenden ausfüllen.