Breitwieser Roth Breitwieser Roth

Objekt: 11463

Gute Konzepte auf allen Ebenen

Nettokaltmiete / m2 26,25 €
Nebenkosten / m2 3 €
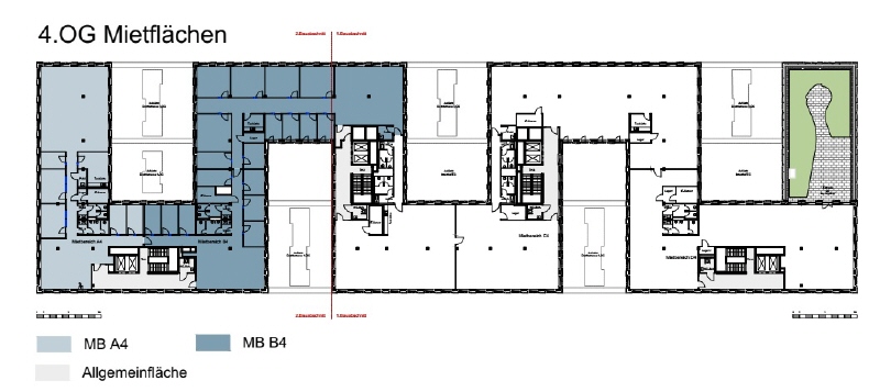
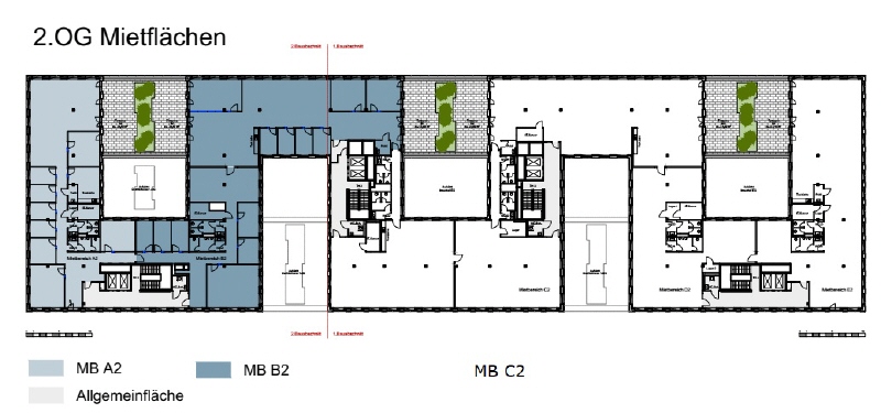
Fläche 4.534 m²
Teilbar ab 554 m²
80809 München Milbertshofen / Am Hart
Bezug ca. 6 Monate nach Vertragsabschluss
Provision provisionsfrei für den Mieter

Beschreibung

Das neue Highlight im dynamischen Münchner Norden: MO’ANDER, ein Neubau mt ambitionierter Architektur. Auf dem ehemaligen Areal der Knorr-Bremse AG entsteht ein innovativer Campus für Wohnen und Arbeiten. Flexible Grundrisse für unterschiedliche Arbeitskonzepte und eine herausragende Ausstattung sind selbstverständlich. Mittels Grundwasserbrunnen und effizienten Wärmepumpenanlagen ist das Kühlen und Heizen CO2-neutral und ökologisch unbedenklich. Vielfältige Terrassen und die umgebende Parkanlage holen das Grün ins Haus. Ein schönes Plus sind die beiden exklusiven Terrassen im 2. OG mit jeweils 54 m², die zur Hälfte berechnet werden.

Lage

  • zwischen Lerchenauer- und Lassallestraße
  • U-Bahn Oberwiesenfeld vor dem Hauseingang
  • ca. 2 Fahrminuten mit der U-Bahn bis zum Olympia-Einkaufszentrum
  • zahlreiche Restaurants und Cafés ca. 5 Gehminuten entfernt, auf dem Areal ist ein Mitarbeiter-Restaurant vorhanden

Ausstattung

  • Bodenbelag nach Mieterwunsch
  • Rundleuchten in den Heiz-/Kühlsegeln integriert
  • Vorbereitung für eine IT-Verkabelung
  • Personenaufzüge
  • Umkleiden mit Duschen/WC vorhanden
  • exklusive Dachterrasse
  • Raumhöhe im OG von ca. 3,20 m
  • elektrischer, außen liegender Sonnenschutz
  • individuell steuerbare Heiz-Kühl-Deckensegel
  • mechanische Luftwechselrate 2-fach in Büroräumen, 5-fach in Besprechungsräumen
  • Kälte-/Wärmesteuerung durch den Mieter einzelraumsteuerungsfähig
  • Zugangskontrollsystem

Sonstiges

  • insgesamt 38 Stellplätze in der Tiefgarage, davon ca. 30 % e-ladefähig (à € 135,00 zzgl. € 10,00 Nebenkosten und gesetzl. MwSt.)
  • 112 Fahrradstellplätze im EG mit direktem Zugang, teilweise e-ladefähig
  • Archivflächen auf Anfrage (à € 10,00/m² zzgl. ges. MwSt.)
  • Energieausweis / Hinweis zur EnEV 2014: Zum Zeitpunkt der Erstellung und Veröffentlichung dieser Anzeige lag uns für die Immobilie kein Energieausweis vor, dessen Kennwerte nach § 16a der Energieeinsparverordnung ab dem 01. Mai 2014 in der Anzeige anzugeben wären. Hiervon unberührt bleibt die Verpflichtung des Vermieters / Verpächters bzw. Verkäufers der Immobilie, einen gültigen Energieausweis erstellen zu lassen und nach Maßgabe des § 16 Abs. 2 EnEV 2014 vorzulegen.
Merkliste

Gerne senden wir Ihnen Exposés Ihrer Favoriten per Email zu.

Sie haben noch keine Favoriten gespeichert.

Vielen Dank
Wir werden uns so schnell
wie möglich mit Ihnen
in Verbindung setzen.
Objekt: 11463
Exposé anfordern

* Pflichtfelder bitte vor Absenden ausfüllen.