Breitwieser Roth Breitwieser Roth

Objekt: 12255

Günstiges geräumiges Loftbüro

Nettokaltmiete / m2 14,00 €
Nebenkosten / m2 2,50 €
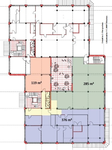
Fläche 285 m²
Teilbar ab 285 m²
80807 München Schwabing-Freimann
Bezug nach Vereinbarung
Provision provisionsfrei für den Mieter

Beschreibung

Errichtet im Jahr 1993 präsentiert sich das Geschäftshaus mit einer zeitlosen Architektur, die sich nahtlos in die Umgebung einfügt. Über vier Etagen verteilt, besticht es vor allem durch die ausgezeichnete Verkehrsanbindung an die A9. Die zur Verfügung stehende Bürofläche im 2. Obergeschoss ist überwiegend südlich ausgerichtet und kann dank der flexiblen Raumaufteilung individuell an die Anforderungen des neuen Mieters angepasst werden. Ob offene Großraumbereiche oder abgeschlossene Einzelbüros – hier haben Sie die Möglichkeit, die Räume ganz nach Ihren Vorstellungen zu gestalten.

Lage

  • zwischen Frankfurter Ring, Ingolstädter Straße und A9
  • U-Bahn Station "Studentenstadt" in 15 Gehminuten Entfernung oder die Buslinie 177 unmittelbar vor dem Objekt
  • Geschäfte des täglichen Bedarfs sowie Cafés oder Restaurants in circa 10 Gehminuten erreichbar

Ausstattung

  • bearbeiteter Steinboden
  • Beleuchtung vorhanden
  • gemeinschaftliche Nutzung der WCs
  • IT-Verkabelung über Brüstungskanäle unter den Fenstern vorhanden (muss evtl. auf Ihren Bedarf angepasst werden)
  • 2 Personen- und 2 Lastenlifte
  • Raumhöhe von ca. 3,00 - 3,50 m

Sonstiges

  • Stellplätze (à € 40,00 zzgl. gesetzl. MwSt.) können angemietet werden
  • 2 öffentliche E-Ladesäulen (22 kW Type 2) sind in 5 Gehminuten Entfernung zu erreichen
  • Archivflächen (à € 5,00 - 8,00/m² zzgl. gesetzl. MwSt.)
  • Gewerbesteuerhebesatz von 490 %
  • die dargestellten Impressionen zeigen Ausbaubeispiele aus dem Gebäude
  • ein Energieverbrauchsausweis (gültig bis 18. Februar 2035) liegt vor, der Endenergiebedarf ODER Verbrauchskennwert für Wärme beträgt 73,1 kWh/(m²*a) und für Strom 13,8 kWh/(m²*a), wesentlicher Energieträger für die Heizung des Gebäudes ist Fernwärme
Merkliste

Gerne senden wir Ihnen Exposés Ihrer Favoriten per Email zu.

Sie haben noch keine Favoriten gespeichert.

Vielen Dank
Wir werden uns so schnell
wie möglich mit Ihnen
in Verbindung setzen.
Objekt: 12255
Exposé anfordern

* Pflichtfelder bitte vor Absenden ausfüllen.