Breitwieser Roth Breitwieser Roth

Objekt: 4370

Günstiges Büro mit optimaler Verkehrsanbindung

Nettokaltmiete / m2 15,00 €
Nebenkosten / m2 4,50 €
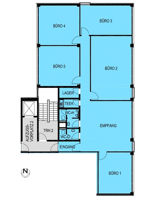
Fläche 289 m²
Teilbar ab 289 m²
81549 München Obergiesing
Bezug nach Vereinbarung
Provision provisionsfrei für den Mieter

Beschreibung

Das Bürogebäude mit seinem attraktiv gestalteten Eingangsbereich befindet sich in idealer Verkehrslage direkt am Mittleren Ring. Die unterschiedlichen Büros bieten viele Nutzungsmöglichkeiten: Großraumbüros sowie auch Einzelbüros können dargestellt werden. Die Raumaufteilung erfolgt in Absprache mit dem neuen Mieter und wird komplett renoviert übergeben.

Lage

  • zwischen Ständler- und Balanstraße
  • U-Bahn und S-Bahn Giesing
  • ca. 3 Gehminuten bis zum Bahnhof Giesing mit einigen Einkaufsmöglichkeiten
  • Cafés sowie ein Restaurant mit Biergarten befinden sich in der Nähe

Ausstattung

  • Teppichboden
  • in die Decke integrierte Beleuchtung
  • Teeküche nach Absprache
  • Kabelkanäle für die IT-Verkabelung
  • Personenlift im Haus
  • Raumhöhe von ca. 2,80 m
  • außen liegender Sonnenschutz

Sonstiges

  • Außen- sowie Tiefgaragenstellplätze können angemietet werden (Mietpreis auf Anfrage)
  • E-Ladesäulen mit 22kW in 5 Gehminuten entfernt
  • Archivflächen auf Anfrage
  • Gewerbesteuerhebesatz 490%
  • die dargestellten Impressionen zeigen Ausbaubeispiele aus dem Gebäude
  • ein Energiebedarfsausweis liegt vor, der Endenergiebedarf für Wärme beträgt 196,7 kWh/(m²*a) und für Strom 18,3 kWh/(m²*a), wesentlicher Energieträger für die Heizung des Gebäudes ist Erdgas
Merkliste

Gerne senden wir Ihnen Exposés Ihrer Favoriten per Email zu.

Sie haben noch keine Favoriten gespeichert.

Vielen Dank
Wir werden uns so schnell
wie möglich mit Ihnen
in Verbindung setzen.
Objekt: 4370
Exposé anfordern

* Pflichtfelder bitte vor Absenden ausfüllen.