Breitwieser Roth Breitwieser Roth

Objekt: 12186

Günstige Büroflächen … Nahe Messe Riem

Nettokaltmiete / m2 10,60 €
Nebenkosten / m2 3,50 €
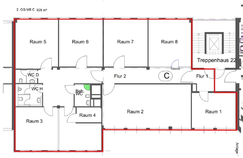
Fläche 305 m²
Teilbar ab 305 m²
81929 München Trudering / Riem
Bezug nach Vereinbarung
Provision provisionsfrei für den Mieter

Beschreibung

Das Büro- und Geschäftsgebäude befindet sich im Herzen des Zamilaparks. Das Objekt wurde vor wenigen Jahren grundlegend renoviert. Im Erdgeschoss befinden sich verschiedene Ladeneinheiten, der große Vorplatz mit Sitzgelegenheiten und Begrünung bietet sich ideal für die Mittagspause an. Das Büro im 2. Obergeschoss ist in 7 unterschiedlich große Räume abgetrennt und kann sowohl als Einzel- und Mehrpersonenbüros genutzt werden.

Lage

  • zwischen A94 und Daglfinger Straße
  • S-Bahn Daglfing fußläufig erreichbar, Bushaltestelle mit Anbindung zum Max-Weber-Platz vor der Tür
  • verschiedene Geschäfte und Läden befinden sich direkt im Erdgeschoss des Gebäudes
  • ein Restaurant ist ebenfalls im Haus ansässig

Ausstattung

  • Teppichboden
  • Deckenrasterleuchten vorhanden
  • Fensterbankkabelkanäle für die IT-Verkabelung
  • Personenlift
  • normale Raumhöhe
  • außen liegender Sonnenschutz

Sonstiges

  • 10 Stellplätze in der Tiefgarage (à € 65,00 zzgl. gesetzl. MwSt.)
  • Archivflächen auf Anfrage
  • die dargestellten Impressionen zeigen Ausbaubeispiele aus dem Gebäude
  • Gewerbesteuerhebesatz von 490 %
  • ein Energiebedarfsausweis (gültig bis 25. August 2029) liegt vor, der Endenergiebedarf für Wärme beträgt 215,2 kWh/(m²*a) und für Strom 23,0 kWh/(m²*a), wesentlicher Energieträger für die Heizung des Gebäudes ist Gas
Merkliste

Gerne senden wir Ihnen Exposés Ihrer Favoriten per Email zu.

Sie haben noch keine Favoriten gespeichert.

Vielen Dank
Wir werden uns so schnell
wie möglich mit Ihnen
in Verbindung setzen.
Objekt: 12186
Exposé anfordern

* Pflichtfelder bitte vor Absenden ausfüllen.