Breitwieser Roth Breitwieser Roth

Objekt: 12155

Gelegenheit in der City … Stylisch saniertes Gebäude … Mit Dachterrasse

Nettokaltmiete / m2 30,00 €
Nebenkosten / m2 5,50 €
Fläche 503 m²
Teilbar ab 183 m²
80331 München Altstadt
Bezug ab Juli 2026
Provision provisionsfrei für den Mieter

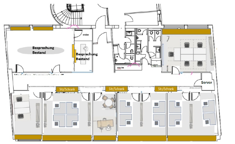
Beschreibung

Das vor einigen Jahren komplett revitalisierte, ruhig gelegene Bürogebäude befindet sich unweit dem Sendlinger Tor. Von außen schlicht mit grauer Steinfassade, überrascht umso mehr die stylisch gestaltete Lobby in warmen Tönen. Die Büros sind nach neuesten Standards ausgestattet, teilweise mit Glaselementen versehen. Die Einheit kann im Istzustand zu Juli 2026 angemietet werden, bei einem möglichen Umbau ist mit Ausbauzeiten
zwischen 8-10 Wochen zu rechnen. Die Dachterrasse mit fantastischem Blick über die Dächer der Altstadt kann von allen Mietern genutzt werden.

Lage

  • zwischen Stachus und Sendlinger Tor Platz
  • U- und S-Bahn und Tram-Station Karlsplatz oder U-Bahn Sendlinger Tor
  • ca. 2 Gehminuten bis zur Fußgängerzone mit allem, was das Herz begehrt

Ausstattung

  • Parkett
  • Deckenleuchten
  • Teeküche
  • IT-Verkabelung in Fensterbankkanälen (muss eventuell auf Ihren Bedarf angepasst werden)
  • Personenlift
  • normale Raumhöhe
  • Sicherheitsdienst von 08:00 bis 18:00 Uhr

Sonstiges

  • 1 Stellplatz in der Tiefgarage (à € 220,00 zzgl. gesetzl. MwSt.) anmietbar
  • öffentliche E-Lademöglichkeit ca. 400 m² entfernt
  • Lagerfläche im UG auf Anfrage
  • ein Energieverbrauchsausweis (gültig bis 9. Januar 2034) liegt vor, der Verbrauchskennwert für Wärme beträgt 57,3 kWh/(m²*a) und für Strom 15,1 kWh/(m²*a), wesentlicher Energieträger für die Heizung des Gebäudes ist Fernwärme
Merkliste

Gerne senden wir Ihnen Exposés Ihrer Favoriten per Email zu.

Sie haben noch keine Favoriten gespeichert.

Vielen Dank
Wir werden uns so schnell
wie möglich mit Ihnen
in Verbindung setzen.
Objekt: 12155
Exposé anfordern

* Pflichtfelder bitte vor Absenden ausfüllen.