Breitwieser Roth Breitwieser Roth

Objekt: 11260

Für Liebhaber … Atemberaubende Agenturfläche

Nettokaltmiete / m2 18,00 €
Nebenkosten / m2 2,40 €
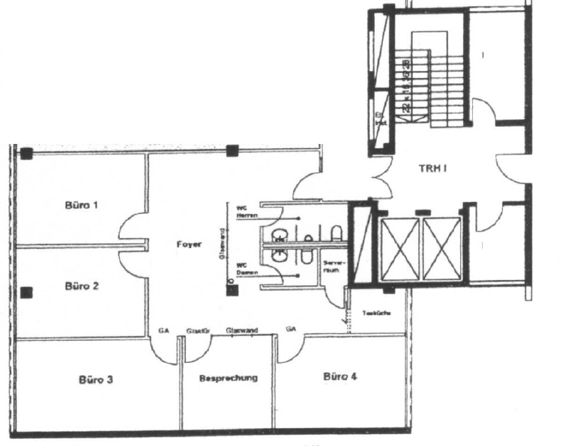
Fläche 172 m²
Teilbar ab 172 m²
81379 München Thalkirchen / Obersendling / Forstenried
Bezug nach Vereinbarung
Provision provisionsfrei für den Mieter

Beschreibung

Bei diesem Gebäude kommt man aus dem Staunen nicht mehr raus: der 70er-Jahre-Sichtbetonbau wurde mit viel Kreativität komplett revitalisiert, wobei die Details aus der Zeit erhalten, aber neu interpretiert wurden. Die Lofts und Büros, die in diesem 3-gliedrigen Gebäude entstanden sind, sind wirklich sehenswert. Dabei wurden hochwertige Materialien wie Akustikdecken und Glaselemente verwendet. Die Fläche ist in 4 Büros und einen Besprechungsraum unterteilt, kann aber auch umgestaltet werden.

Lage

  • zwischen Boschetsrieder und Kistlerhofstraße
  • U-Bahn Aidenbachstraße
  • ca. 3 Gehminuten bis zur Boschetsrieder Straße mit zahlreichen Geschäften, Restaurants und Snackbars

Ausstattung

  • Eichendielenboden
  • zum Teil Einbauleuchten
  • Teeküche
  • IT-Verkabelung in Bodenkanälen vom Vormieter (muss eventuell auf Ihren Bedarf angepasst werden)
  • Personenlift im Haus
  • außen liegender Sonnenschutz
  • Dachterrasse (für alle Mieter des Hauses nutzbar)

Sonstiges

  • Duplex-Stellplätze können in der hauseigenen Tiefgarage angemietet werden (à € 65,00 zzgl. gesetzl. MwSt)
  • E-Ladesäulen mit 22kW in 3 Gehminuten entfernt
  • Lagerflächen in unterschiedlicher Größe sind anmietbar (à € 7,50/ m² zzgl. gesetzl. MwSt)
  • Gewerbesteuerhebesatz 490%
  • ein Energieverbrauchsausweis liegt vor, der Verbrauchskennwert für Wärme beträgt 93,9 kWh/(m²*a) und für Strom 37,5 kWh/(m²*a), wesentlicher Energieträger für die Heizung des Gebäudes ist Fernwärme
Merkliste

Gerne senden wir Ihnen Exposés Ihrer Favoriten per Email zu.

Sie haben noch keine Favoriten gespeichert.

Vielen Dank
Wir werden uns so schnell
wie möglich mit Ihnen
in Verbindung setzen.
Objekt: 11260
Exposé anfordern

* Pflichtfelder bitte vor Absenden ausfüllen.