Breitwieser Roth Breitwieser Roth

Objekt: 11291

Exzellente Büroräume an der Theresienhöhe

Nettokaltmiete / m2 29,00 €
Nebenkosten / m2 4,50 €
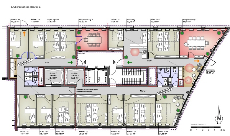
Fläche 902 m²
Teilbar ab 228 m²
80339 München Schwanthalerhöhe
Bezug nach Vereinbarung
Provision provisionsfrei für den Mieter

Beschreibung

Die Theresie – das Ensemble an der Theresienhöhe hat sich zum attraktiven und lebendigen Stadtquartier entwickelt. Die Theresie vereint kurze Wege, ein urbanes Angebot, eine dynamische Architektur und hochmoderne Flächen zu einer Business Community mit eigenem Lebensgefühl. Die attraktive Bürofläche mit flexibler Raumaufteilung kann den Anforderungen des neuen Nutzers angepasst werden.

Lage

  • zwischen Heimeranplatz und Theresienwiese
  • U-Bahn Schwanthalerhöhe direkt vor der Tür
  • im Zentrum Theresie findet man alle Geschäfte für den täglichen Bedarf
  • einige Restaurants und Cafés befinden sich in den Seitenstraßen, ein schöner Biergarten liegt unweit entfernt

Ausstattung

  • Teppichboden
  • Beleuchtung nach Absprache
  • Hohlraumboden für die IT-Verkabelung
  • Personenlift im Haus
  • schöne Raumhöhe von ca. 2,97 m
  • außen liegender Sonnenschutz
  • Kühldecken teilweise vorhanden, sind nachrüstbar
  • elektronisches Zugangssystem (Kartenleser)

Sonstiges

  • Stellplätze in der Tiefgarage (à € 145,00 zzgl. gesetzl. MwSt.) oder im Außenbereich (à € 120,00 zzgl. gesetzl. MwSt.) anmietbar
  • Archivflächen vorhanden (à € 12,00/m² zzgl. € 4,50 Nebenkosten und gesetzl. MwSt.)
  • öffentliche E-Ladestation (2 x 100 KW CCS) in ca. 130 m
  • Quelle der Fotos: @ Deka Immobilien
  • Gebäude zertifiziert
  • ein Energiebedarfsausweis (gültig bis 05. Mai 2034) liegt vor, der Endenergiebedarf für Wärme beträgt 114,1 kWh/(m²*a) und für Strom 18,5 kWh/(m²*a), wesentlicher Energieträger für die Heizung des Gebäudes ist Fernwärme
Merkliste

Gerne senden wir Ihnen Exposés Ihrer Favoriten per Email zu.

Sie haben noch keine Favoriten gespeichert.

Vielen Dank
Wir werden uns so schnell
wie möglich mit Ihnen
in Verbindung setzen.
Objekt: 11291
Exposé anfordern

* Pflichtfelder bitte vor Absenden ausfüllen.