Breitwieser Roth Breitwieser Roth

Objekt: 11780

Exklusivmandat … Variable Büros mit Kühldecken in urbaner Lage

Nettokaltmiete / m2 31,50 €
Nebenkosten / m2 3,20 €
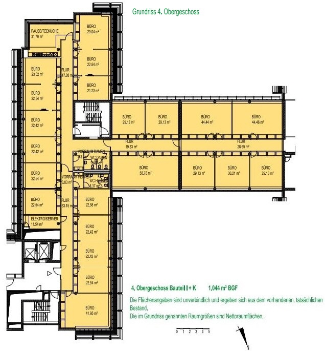
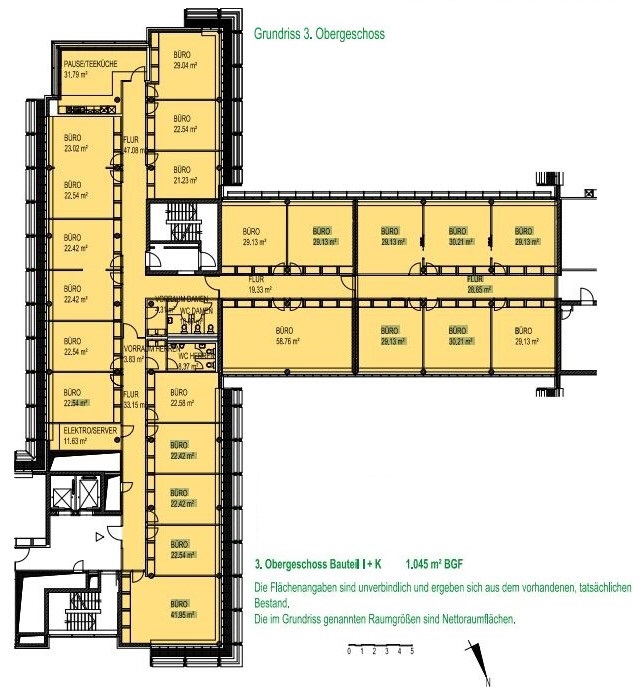
Fläche 2.089 m²
Teilbar ab 2.089 m²
80335 München Maxvorstadt
Bezug nach Vereinbarung
Provision provisionsfrei für den Mieter

Beschreibung

Das attraktive Bürogebäude besticht durch seine Lage, seine moderne Infrastruktur (Glasfaseranschluss / Wärmepumpen / Kühldecken) sowie maßgeschneiderte Grundrisse. Über ein repräsentatives Eingangsfoyer erreicht man die Mieteinheiten mit dem Personenlift. Die ansprechende Metall-Glasfassade garantiert taghelle Büros. New-Work-Konzepte mit zukunftsfähigen Lösungen wie Callboxen, Open Spaces sowie Team- und Einzelbüros sind problemlos umsetzbar. Nach Absprache kann die Kantine und Barista-Bar des Gebäudes mitgenutzt werden.

Lage

  • zwischen Hauptbahnhof und Hackerbrücke
  • Verkehrsknotenpunkt Hauptbahnhof, U-Bahn Stiglmaierplatz, Tram Hackerbrücke oder Hopfenstraße und S-Bahn Hackerbrücke
  • in der nahe gelegenen 'Neuen Hopfenpost' findet man diverse Einkaufsmärkte für den täglichen Bedarf sowie ein großes, öffentliches Parkhaus
  • viele Restaurants und Cafés befinden sich in direkter Nähe, wie z.B. vis-à-vis der Augustiner-Keller

Ausstattung

  • Bodenbelag nach Absprache
  • Leichtmetallfenster zum Kippen und Öffnen, teilweise bodentief
  • bildschirmarbeitsplatzgerechte und dimmbare Einbaurasterleuchten (werden auf LED umgerüstet)
  • Teeküchenanschlüsse
  • CAT7-Verkabelung über Bodentanks (muss eventuell auf Ihren Bedarf angepasst werden)
  • Personen- und Lastenlift
  • Kühldecken, individuell regulierbar
  • lichte Raumhöhe von 2,75 m in den Büros und ca. 2,40 m im Flur
  • außen liegender Sonnenschutz
  • innen liegender, elektrischer Blendschutz

Sonstiges

  • 12 Stellplätze in der Tiefgarage (à € 130,00 zzgl. gesetzl. MwSt.)
  • 2 E-Ladestationen sind in der Tiefgarage geplant
  • öffentliche E-Ladestationen befinden sich fußläufig an der Arnulf- und Seidlstraße
  • Archivflächen auf Anfrage
  • Gewerbesteuerhebesatz 490 %
  • Glasfaseranbieter: M-net und Telekom
  • ein Energieverbrauchsausweis (gültig bis 30. Juli 2035) liegt vor, der Endenergiebedarf für Wärme beträgt 60 kWh/(m²*a) und für Strom 34 kWh/(m²*a), wesentlicher Energieträger für die Heizung des Gebäudes ist Fernwärme
Merkliste

Gerne senden wir Ihnen Exposés Ihrer Favoriten per Email zu.

Sie haben noch keine Favoriten gespeichert.

Vielen Dank
Wir werden uns so schnell
wie möglich mit Ihnen
in Verbindung setzen.
Objekt: 11780
Exposé anfordern

* Pflichtfelder bitte vor Absenden ausfüllen.