Breitwieser Roth Breitwieser Roth

Objekt: 11873

Erstklassige Büroräume in der Parkstadt Schwabing

Nettokaltmiete / m2 20,50 €
Nebenkosten / m2 4 €
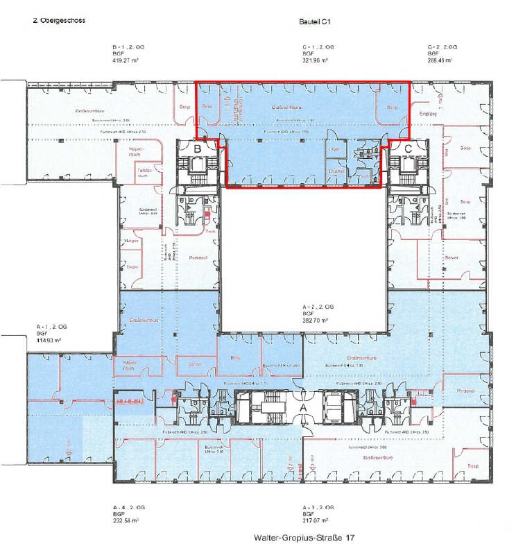
Fläche 259 m²
Teilbar ab 240 m²
80807 München Schwabing-Freimann
Bezug in 2026 nach Vereinbarung
Provision provisionsfrei für den Mieter

Beschreibung

Die eleganten Büros befinden sich in der Parkstadt Schwabing und bieten schnellen Anschluss in Richtung Flughafen und in die Innenstadt. Das moderne Gebäude begeistert mit Komfort und außergewöhnlicher Architektur. Die Räume sind hell, mit bodentiefen Fenstern und zum Teil mit Glaselementen ausgebaut. Die Ausstattung und die Atmosphäre sind insgesamt sehr repräsentativ. Die Fläche wird dem neuen Mieter frisch renoviert, jedoch ohne Umbauten übergeben.

Lage

  • zwischen Domagk-, Leopold- und Ungererstraße
  • U-Bahn Alte Heide und Tram-Station Anni-Albers-Straße fußläufig erreichbar
  • ca. 5 Gehminuten bis zum Parkstadt-Center mit vielen Geschäften für den täglichen Bedarf
  • Restaurants und Cafés befinden sich fußläufiger Umgebung

Ausstattung

  • Teppichboden
  • arbeitsplatzgerechte Pendelleuchten
  • Teeküche nach Absprache
  • Hohlraumboden für die IT-Verkabelung
  • Glasfaseranschluss im Haus
  • mehrere Personenlifts im Gebäude
  • normale Raumhöhe
  • Belüftung vorhanden
  • außen liegender Sonnenschutz

Sonstiges

  • 2 Einzelstellplätze in der Tiefgarage (à € 115,00 zzgl. gesetzl. MwSt.)
  • Archivflächen unterschiedlicher Größe im Keller (à € 8,50/m² zzgl. gesetzl. MwSt.)
  • öffentliche E-Ladestation (4 x Typ 2 mit 22 kW) in wenigen Gehminuten zu erreichen
  • Gewerbesteuerhebesatz: 490%
  • die dargestellten Impressionen zeigen Ausbaubeispiele aus dem Gebäude
  • ein Energieverbrauchsausweis liegt vor, der Verbrauchskennwert für Wärme beträgt 103 kWh/(m²*a) und für Strom 107 kWh/(m²*a), wesentlicher Energieträger für die Heizung des Gebäudes ist Nah-/Fernwärme
Merkliste

Gerne senden wir Ihnen Exposés Ihrer Favoriten per Email zu.

Sie haben noch keine Favoriten gespeichert.

Vielen Dank
Wir werden uns so schnell
wie möglich mit Ihnen
in Verbindung setzen.
Objekt: 11873
Exposé anfordern

* Pflichtfelder bitte vor Absenden ausfüllen.