Breitwieser Roth Breitwieser Roth

Objekt: 11969

Design ohne Kompromisse … Moderne Bürofläche

Nettokaltmiete / m2 32,09 €
Nebenkosten / m2 2,81 €
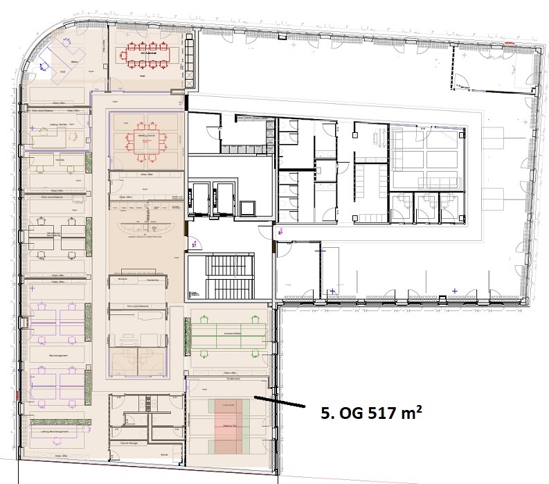
Fläche 517 m²
Teilbar ab 377 m²
80686 München Sendling-Westpark
Bezug nach Vereinbarung
Provision provisionsfrei für den Mieter

Beschreibung

Der stylische Neubau ist nichts für all diejenigen, die einen 08/15-Standard suchen. Hier kommen designaffine Unternehmen auf ihre Kosten. Das 6-stöckige Gebäude wurde im Jahr 2022 fertiggestellt und bietet neben Dachterrassen, offenen Betondecken und -wänden, einem aufwendigen Beleuchtungskonzept und hochwertigem Bodenbelag alles, was man für einen rundum gelungenen Unternehmesauftritt benötigt: lässiges Flair gepaart mit anspruchsvoller Architektur! Es handelt sich um ein Untermietverhältnis bis Ende Oktober 2032. Nach Absprache kann auch ein neues Hauptmietverhältnis gegebenenfalls mit veränderten Konditionen vereinbart werden.

Lage

  • zwischen Garmischer- und Westendstraße
  • U-Bahn Westendstraße
  • Supermärkte und weitere Einkaufsmöglichkeiten für den täglichen Bedarf erreicht man in wenigen Minuten zu Fuß
  • ein paar Restaurants und Cafés befinden sich im nahen Umfeld

Ausstattung

  • Kombination aus Teppich- und Parkettboden
  • Grundbeleuchtung im Flur, Arbeitsplatzbeleuchtung mieterseits
  • Hohlraumboden für die IT-Verkabelung
  • Personenlift im Gebäude
  • angenehme Raumhöhe
  • außen liegender, elektrischer Sonnenschutz
  • Deckensegel mit Heiz- und Kühlfunktion
  • Raumautomation über Präsenzmelder: Luft- und Temperaturregulierung und Beleuchtungsintensität nach Tageslicht

Sonstiges

  • es stehen Stellplätze in der Tiefgarage zur Anmietung (à € 92,65), davon sind ein paar Stellplätze mit einer Wallbox ausgestattet
  • Archivflächen auf Anfrage
  • Gewerbesteuerhebesatz von 490 %
  • BREEAM-Excellent-Zertifizierung
  • ein Energiebedarfsausweis (gültig bis 09. Dezember 2032) liegt vor, der Endenergiebedarf für Wärme beträgt 16 kWh/(m²*a) und für Strom 32 kWh/(m²*a), wesentlicher Energieträger für die Heizung des Gebäudes ist Strom-Mix
Merkliste

Gerne senden wir Ihnen Exposés Ihrer Favoriten per Email zu.

Sie haben noch keine Favoriten gespeichert.

Vielen Dank
Wir werden uns so schnell
wie möglich mit Ihnen
in Verbindung setzen.
Objekt: 11969
Exposé anfordern

* Pflichtfelder bitte vor Absenden ausfüllen.