Breitwieser Roth Breitwieser Roth

Objekt: 7485

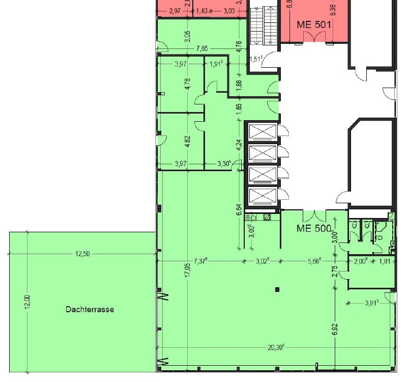
Cooles Loft mit Dachterrasse im Münchner Norden

Nettokaltmiete / m2 16,50 €
Nebenkosten / m2 3,50 €
Fläche 416 m²
Teilbar ab 416 m²
80807 München Milbertshofen / Am Hart
Bezug nach Vereinbarung
Provision provisionsfrei für den Mieter

Beschreibung

Die modernen und loftartigen Büroräume befinden sich in einem BMW-nahen Areal, in dem sich früher hauptsächlich Unternehmen aus der Modebranche angesiedelt haben. Durch den flexiblen Grundriss und die umlaufende Fensterfront können sowohl großzügige Teambüros als auch Großraumlösungen realisiert werden. Der Ausbau erfolgt in Absprache mit dem neuen Mieter. Ein Highlight ist nicht nur der hochwertige Loftcharakter der Fläche sondern insbesondere die 150 m² große Dachterrasse mit tollem Ausblick auf die Alpen sowie über die Stadt München.

Lage

  • zwischen Frankfurter Ring und Hufelandstraße
  • U-Bahn Frankfurter Ring oder Busanbindung vor dem Haus
  • im nahe liegenden Euro-Industriepark befinden sich Supermärkte, Bäckereien und andere Geschäfte für den täglichen Bedarf
  • ein paar Restaurants erreicht man ebenfalls zu Fuß im Euro-Industriepark

Ausstattung

  • Bodenbelag nach Mieterwunsch
  • Beleuchtung mieterseits
  • Teeküchenanschlüsse
  • Kabelkanäle für IT-Verkabelung (muss eventuell auf Ihren Bedarf angepasst werden)
  • Personen- und Lastenlift
  • Raumhöhe von ca. 3,00 m
  • außen liegender Sonnenschutz

Sonstiges

  • Stellplätze außen (Mietpreis auf Anfrage)
  • E-Ladesäulen mit 150 kW befinden sich 7 Gehminuten entfernt
  • Lagerflächen auf Anfrage
  • Gewerbesteuerhebesatz: 490 %
  • die Dachterrasse wird mit 50% eingerechnet
  • Flächenberechnung nach BGF
  • die dargestellten Impressionen zeigen Ausbaubeispiele aus dem Gebäude
  • ein Energiebedarfsausweis liegt vor, der Endenergiebedarf für Wärme beträgt 122 kWh/(m²*a) und für Strom 2 kWh/(m²*a), wesentlicher Energieträger für die Heizung des Gebäudes ist Fernwärme
Merkliste

Gerne senden wir Ihnen Exposés Ihrer Favoriten per Email zu.

Sie haben noch keine Favoriten gespeichert.

Vielen Dank
Wir werden uns so schnell
wie möglich mit Ihnen
in Verbindung setzen.
Objekt: 7485
Exposé anfordern

* Pflichtfelder bitte vor Absenden ausfüllen.