Breitwieser Roth Breitwieser Roth

Objekt: 11795

Coole Büros für Groß und Klein

Nettokaltmiete / m2 ab 16,50 €
Nebenkosten / m2 3,95 €
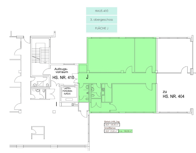
Fläche 170 m²
Teilbar ab 170 m²
81241 München Pasing / Obermenzing
Bezug nach Vereinbarung
Provision provisionsfrei für den Mieter

Beschreibung

Der innovative Gebäudekomplex, bestehend aus 10 kubisch gestalteten Häusern, bietet für jeden Mieter die passende Größe. Flexible Grundrisse ermöglichen nahezu jede Nutzung: Von offenem Großraumbüro bis zu Einzelbüros ist alles realisierbar. Durch die frei angeordneten Häuser mit stylischen Eingangsbereichen entstanden schön begrünte Innenhöfe, ideal für die Erholung in der Mittagspause.

Lage

  • zwischen Am Knie und Wotanstraße
  • S-Bahn Laim oder Pasing bzw. Tram-Station Knie
  • ca. 3 Gehminuten bis zum nächsten Supermarkt und weiteren Geschäften, ca. 15 Gehminuten bis zum Pasinger Zentrum mit vielen Geschäften für den täglichen Bedarf
  • eine kleine Auswahl an Restaurants befindet sich in der Nähe

Ausstattung

  • Bodenbelag nach Mieterwunsch
  • Spots im Flur, abgehängte Pendelleuchten in den Büros
  • Teeküche nach Absprache
  • getrennte WCs
  • Kabelkanäle für die IT-Verkabelung
  • Personen- und Lastenlift in jedem Haus
  • normale Raumhöhe
  • außen liegender Sonnenschutz

Sonstiges

  • Außen- und Tiefgaragenplätze (à € 95,00 zzgl. gesetzl. MwSt.)
  • es sind 18 E-Ladepunkte mit den Stadtwerken auf derm Gelände geplant und öffentliche E-Ladesäulen in unmittelbarer Nähe
  • Archivräume ab 15 m² können angemietet werden (à € 9,50 /m² zzgl. € 2,75 Nebenkosten und gesetzl. MwSt.)
  • die dargestellten Impressionen zeigen Ausbaubeispiele aus dem Gebäude
  • Gewerbesteuerhebesatz von 490 %
  • ein Energiebedarfsausweis (gültig bis 29. September 2030) liegt vor, der Endenergiebedarf für Wärme beträgt 150 kWh/(m²*a) und für Strom 13 kWh/(m²*a), wesentlicher Energieträger für die Heizung des Gebäudes ist Gas
Merkliste

Gerne senden wir Ihnen Exposés Ihrer Favoriten per Email zu.

Sie haben noch keine Favoriten gespeichert.

Vielen Dank
Wir werden uns so schnell
wie möglich mit Ihnen
in Verbindung setzen.
Objekt: 11795
Exposé anfordern

* Pflichtfelder bitte vor Absenden ausfüllen.