Breitwieser Roth Breitwieser Roth

Objekt: 11749

Chices Büro in stylischem Umfeld

Nettokaltmiete / m2 20,00 €
Nebenkosten / m2 4,90 €
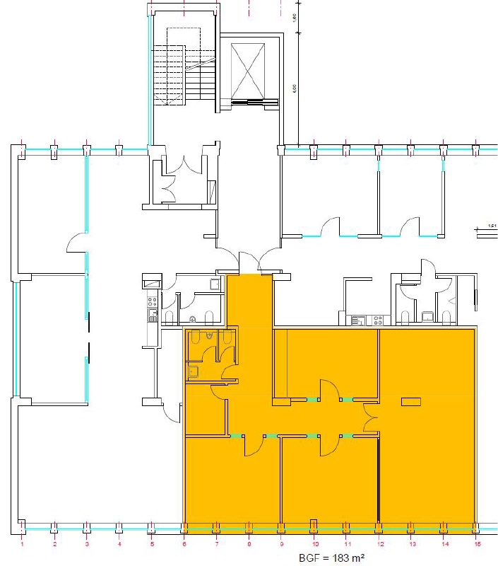
Fläche 183 m²
Teilbar ab 183 m²
81541 München Ramersdorf / Perlach
Bezug nach Vereinbarung
Provision provisionsfrei für den Mieter

Beschreibung

Dies ist kein Standort für Mieter, die ein 08/15-Büro suchen. Vor allem Unternehmen, die sich ein kreatives Umfeld wünschen, sind hier genau richtig. Der werksgeländetypische Gebäudemix macht den Reiz dieses Standorts aus.
Das Gelände ‚Neue Balan‘ hat eine lange Geschichte. Zuerst fand die Familie Kustermann dort ihren Sitz für Produktionen, später ließ sich hier Infinion nieder, bevor das Gelände vor einigen Jahren völlig neu entwickelt, die Bestandsbauten saniert wurden und der Standort durch Neubauten ergänzt wurde. Nicht gewöhnlich ist vor allem die Struktur der einzelnen Häuser: vom zweistöckigen Flachbau, über Neubauten, bis zum Hochhaus mit Blick über München findet hier jeder ein passendes Büro.

Lage

  • zwischen Ostbahnhof, Mittlerer Ring und Rosenheimer Straße
  • U-Bahn Karl-Preis-Platz oder S-Bahn Sankt-Martin-Straße, Bushaltestelle vor der Tür
  • im Umkreis befinden sich ein paar kleinere Läden und Geschäfte, auf dem Gelände ist ein Supermakt und ein Fitnessstudio untergebracht
  • ein paar Restaurants erreicht man zu Fuß, auf dem Gelände gibt es ein Café und ein Deli

Ausstattung

  • Bodenbelag nach Absprache
  • Beleuchtung mieterseits
  • Teeküche nach Absprache
  • Kabelkanäle für die IT-Verkabelung
  • Personenlift im Haus
  • Loft-Atmosphäre, hohe Räume, Installationen sichtbar
  • außen liegender Sonnenschutz

Sonstiges

  • Stellplätze können im Parkhaus auf dem Gelände (à € 120,00 zzgl. gesetzl. MwSt.) gemietet werden
  • E-Ladesäulen auf dem Gelände
  • Lagerflächen unterschiedlicher Größe (à € 9,00/m² zzgl. gesetzl. MwSt.)
  • Gewerbesteuerhebesatz 490%
  • die dargestellten Impressionen zeigen Ausbaubeispiele aus dem Gebäude
  • ein Energiebedarfsausweis (gültig bis 29. Mai 2032) liegt vor, der Endenergiebedarf für Wärme beträgt 122,5 kWh/(m²*a) und für Strom 31,1 kWh/(m²*a), wesentlicher Energieträger für die Heizung des Gebäudes ist Fernwärme
Merkliste

Gerne senden wir Ihnen Exposés Ihrer Favoriten per Email zu.

Sie haben noch keine Favoriten gespeichert.

Vielen Dank
Wir werden uns so schnell
wie möglich mit Ihnen
in Verbindung setzen.
Objekt: 11749
Exposé anfordern

* Pflichtfelder bitte vor Absenden ausfüllen.